- Joined
- 23 Jun 2018
- Messages
- 74
- Reaction score
- 0
- Country

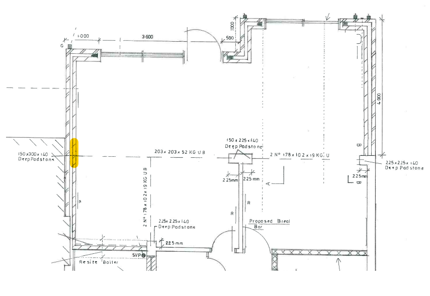
Hi,
I am taking a corner out of the kitchen on the ground floor which will be supported by a 'T' RSJ section. The largest RSJ (203 x 203 x52) has a span of 5m. One end will be on the original 9inch brick pier and the other will be on a new 300mm wall (inner leaf - 100mm).
The builder has built the inner leaf with 3.6N Aerated thermal blocks where the RSJ is to be placed perpendicular. I was expecting this section to be built with concrete 7N blocks. I am concerned as according to the calculations, there will be a force of 51.4 kN, however the builder is confident this is ok. There will be a padstone on the wall of a size to be determined.
Is it ok (and normal) to place RSJ's perpendicular onto a thermalite wall and will it be able to withstand the load?
Could I extending the RSJ to the concrete outer leaf so that the the RSJ sits on both leafs ?
Thanks
I am taking a corner out of the kitchen on the ground floor which will be supported by a 'T' RSJ section. The largest RSJ (203 x 203 x52) has a span of 5m. One end will be on the original 9inch brick pier and the other will be on a new 300mm wall (inner leaf - 100mm).
The builder has built the inner leaf with 3.6N Aerated thermal blocks where the RSJ is to be placed perpendicular. I was expecting this section to be built with concrete 7N blocks. I am concerned as according to the calculations, there will be a force of 51.4 kN, however the builder is confident this is ok. There will be a padstone on the wall of a size to be determined.
Is it ok (and normal) to place RSJ's perpendicular onto a thermalite wall and will it be able to withstand the load?
Could I extending the RSJ to the concrete outer leaf so that the the RSJ sits on both leafs ?
Thanks
Last edited: