- Joined
- 30 Dec 2023
- Messages
- 13
- Reaction score
- 0
- Country

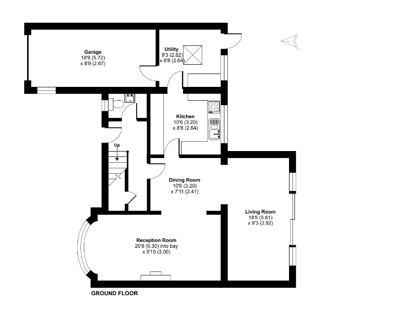
hi all,
i recently bought a link detached house and have the floor plan as attached. We would like to have a bedroom downstairs with open plan kitchen.
any ideas or suggestion on how to achieve without extending.
Not worried about converting the garage as well.
Thanks in advance
i recently bought a link detached house and have the floor plan as attached. We would like to have a bedroom downstairs with open plan kitchen.
any ideas or suggestion on how to achieve without extending.
Not worried about converting the garage as well.
Thanks in advance