can anyone please tell me where i can find some information, drawings ect of raft foundations
we are proposing to build a two story extension, the land we are building on is virtually all sand below 1 foot of digging
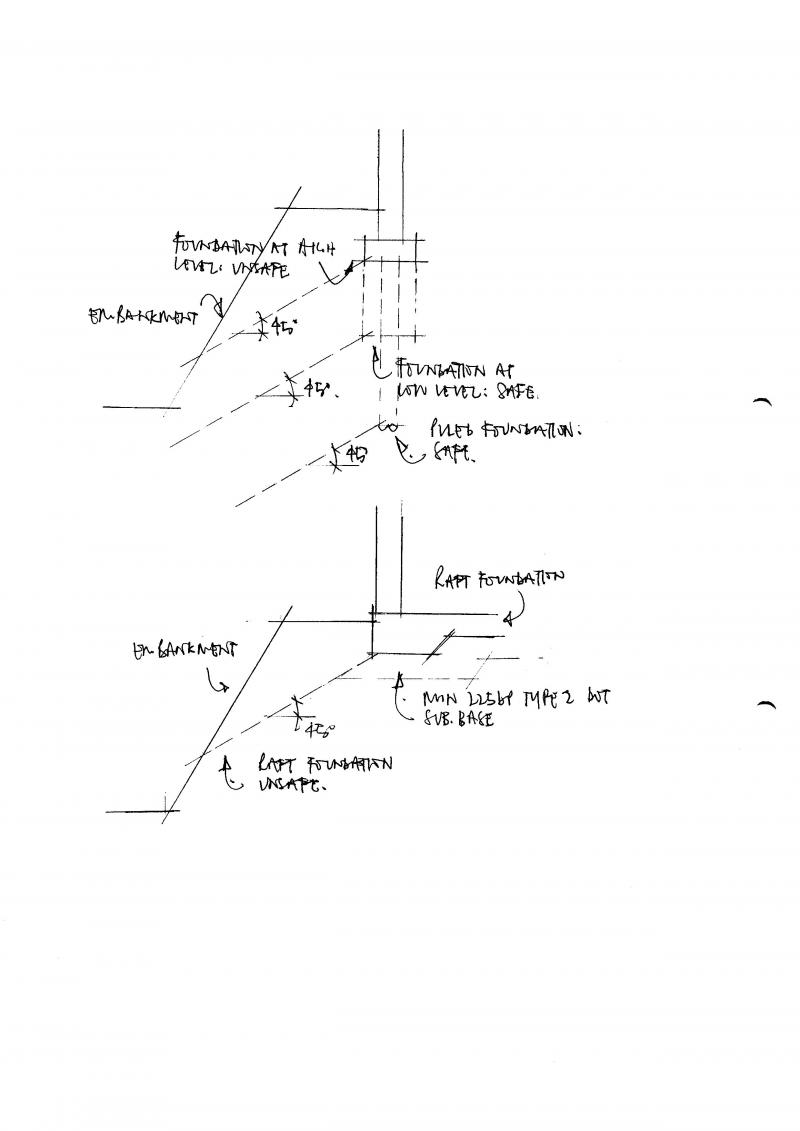
our site is next to a railway line and railtrack are concerned that our building will collapse down there embankment and want a cat 2 design certificate?
any help would be most grateful
thanks
we are proposing to build a two story extension, the land we are building on is virtually all sand below 1 foot of digging
our site is next to a railway line and railtrack are concerned that our building will collapse down there embankment and want a cat 2 design certificate?
any help would be most grateful
thanks
