Our house is brick and block, built in 1981.
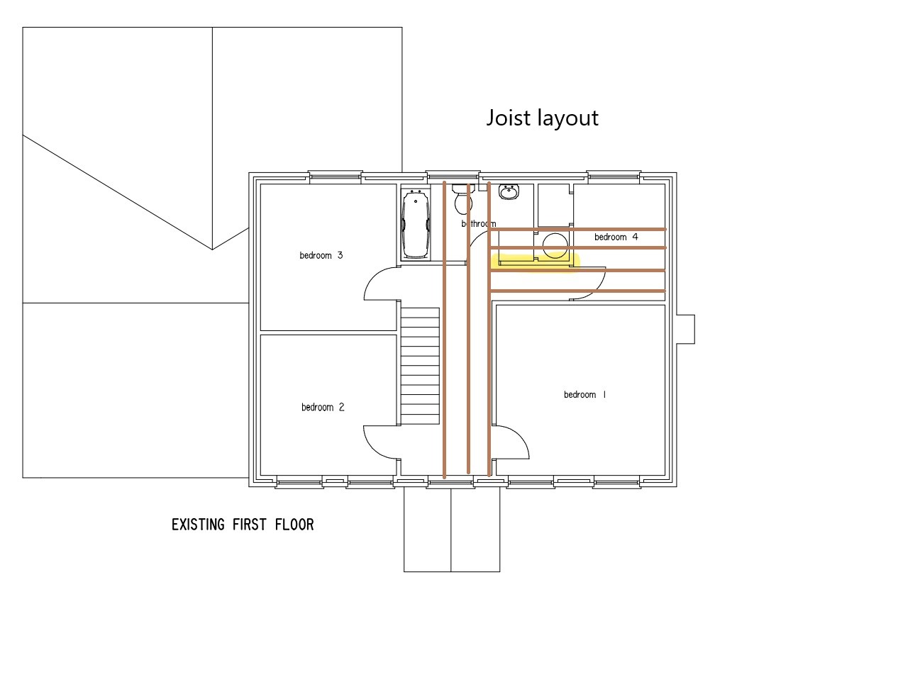
On carrying out what was supposed to be simple upstairs bathroom renovations, I have uncovered some concerns in an internal breeze block wall. Essentially, it appears the wall is supported only by the timber sole plate sitting on 20mm chipboard floorboards.
The nearest joist runs parallel with this wall, 75mm to the side along its length. Either end of the sole plate does not meet any firm structure under the floorboards, except for what appears to be some rudimentary bracing at one end (the right hand end as you look at the plan, underneath the bedroom 4 floor).
I've attached some plans with the wall highlighted and photos to help visualise. I have no reason to believe the wall is not original from the house build, meaning it has possibly been this way for the last 40 years! Not to mention how it may have passed through inspections.
Obviously, I would really prefer not to remove the wall! So I am looking for any advice on how this might be avoided by any other bracing or techniques, though I do accept that the best solution would be to remove the wall and replace it with a stud wall.
Any advice would be greatly appreciated. Thanks
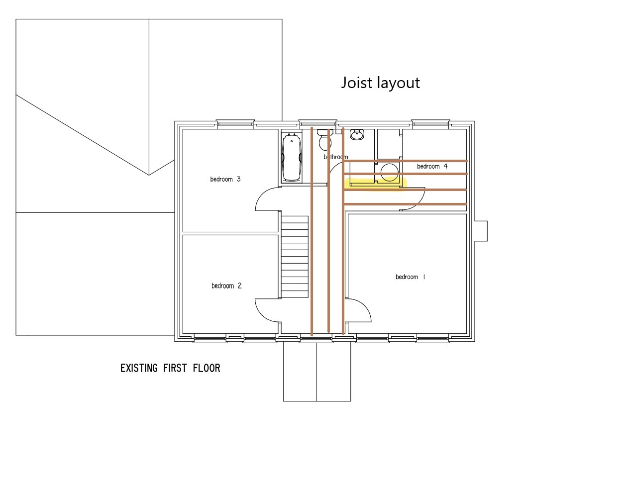
On carrying out what was supposed to be simple upstairs bathroom renovations, I have uncovered some concerns in an internal breeze block wall. Essentially, it appears the wall is supported only by the timber sole plate sitting on 20mm chipboard floorboards.
The nearest joist runs parallel with this wall, 75mm to the side along its length. Either end of the sole plate does not meet any firm structure under the floorboards, except for what appears to be some rudimentary bracing at one end (the right hand end as you look at the plan, underneath the bedroom 4 floor).
I've attached some plans with the wall highlighted and photos to help visualise. I have no reason to believe the wall is not original from the house build, meaning it has possibly been this way for the last 40 years! Not to mention how it may have passed through inspections.
Obviously, I would really prefer not to remove the wall! So I am looking for any advice on how this might be avoided by any other bracing or techniques, though I do accept that the best solution would be to remove the wall and replace it with a stud wall.
Any advice would be greatly appreciated. Thanks
