Search results

  1. D

    Unusual boss pipe

    Hi All, Anyone know of a manufacturer of a 110mm boss pipe similar to the drawing below? Thanks.
  2. D

    Hellllllp please - Visqueen double sided DPM jointing tape

    mikric, The overlap is 225mm. I've just had a call from Visqueen who have told me that the tape I have was withdrawn about 3 years ago because of the problem I'm having. The tape I have is black and the newer stuff is blue. Time for a row with the wholesaler, me thinks.
  3. D

    Hellllllp please - Visqueen double sided DPM jointing tape

    mikric, He's a she, presumably with no knob. I think the reasoning behind not using duct tape is that the adhesive used on some duct tape is not permanent.
  4. D

    Hellllllp please - Visqueen double sided DPM jointing tape

    Noseall, The DPM is not being used a gas membrane and our BCO won't accept duct tape as the adhesive will eventually give up. Also I'm having to work through a 2 inch gap, between the top of some mini-piles and the underside of the remainder of the existing concrete slab, so ensuring a good...
  5. D

    Hellllllp please - Visqueen double sided DPM jointing tape

    I've applied some Visqueen double sided DPM jointing tape to a new section of Visqueen DPM that is going to be used to extend an existing DPM. The problem I've got is the backing paper will not come off the tape and Visqueen technical services have been about as much use as a chocky tea pot...
  6. D

    To blind or not to blind

    Thanks for that jeds :D Just to make sure we're on the same wave length, I was referring to wrapping the soil pipes where they poke up through the concrete/screed for the purpose of movement etc. Thanks in advance. duffsparky.
  7. D

    To blind or not to blind

    Hi All, I'm replacing the concrete floor in my shower room/toilet. The floor's had to be replaced as it had subsided (poor oversite). I'm using polystyrene sheet (jablite) to insulate the floor with the dpm on top of the insulation. The final layer of hardcore has been finished off...
  8. D

    Connections to soil stack

    Thanks htgeng, Unfortunately I don't have enough room to fit the manifold suggested, so I guess it's back to the original post idea of stacked bosses .
  9. D

    Connections to soil stack

    Hi All, Can anyone advise me if there is a minimum distance between multiple boss connections into the soil stack where they all enter the stack on one side? I want to connect 2 x 40mm (1 x 40mm for double kitchen sink and 1 x 40mm for dishwasher) and 1 x 32mm (for hand wash basin) waste...
  10. D

    Cover for soil pipe running below concrete floor.

    Hi All, Please could someone give me some guidance on what to cover a new 100mm plastic soil pipe with. The pipe will be running below the insulation and through the hardcore underneath a new concrete floor. The pipe runs internally along side an outside wall, is about 1.8 metres long...
  11. D

    Help with plumbing waste design

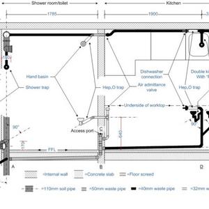
    Hi TicklyT, Thanks for the reply. I've amended the design to show 50mm pipe for the section below the floor level and up to the 40mm branch to the kitchen and added a 50mm access port just before the 32mm branch to the toilet hand basin. I've also added a hepVO trap for the dishwasher...
  12. Untitled

    Untitled

  13. Untitled

    Untitled

  14. D

    Help with plumbing waste design

    Hi All, I've got to replace some of the plumbing waste pipes in my place as part of shower room/toilet refurb. I'd be really grateful if any of the plumbers on this forum could cast an eye over my design (see photo). Apart from the soil pipe all the pipes in the 'Shower room/toilet' area of...
  15. Untitled

    Untitled

  16. G/F waste pipes

    G/F waste pipes

  17. D

    Synthaprufe vs Wickes "Liquid Damp Proof Membrane"

    I know the OP was some while ago, but in answer to The Wickes product is Laybond Aquaprufe made by Bostik. Don't know if it's as good as Synthaprufe or better but it is similar
  18. D

    Sealing soil pipe passing through damp proof membrane (DPM)

    Hi All, I'm replacing the concrete floor in my ground floor toilet. Where the soil pipe went through the old DPM there was just a hole cut in it, roughly the size of the pipe and that was it. Our local Building Control want a sealing collar installed that sticks to the new membrane and the...
  19. D

    DPM to DPM overlap problem

    Hi All, I'm hoping someone can help me with a problem I'm having overlapping a new piece of DPM with an existing one. The concrete slab shown in the photo's had sunk due to settlement of its deep (90 to 100cm) reject stone foundation. The area of slab and foundation from where the...
  20. D

    DPM to DPC boundary sealing

    C'mon dudes! Someone must have an input/idea on this
Back
Top