I love this forum. It contains a great wealth of knowledge and I’d like to think 95% of the time you get a query resolved sensibly in the end. I have put my 2p worth to many questions, as well as asking a few myself! I thought it would only be right to share this project with you all.
I am a 30 year old aircraft engineer by trade but have worked with my dad on guvvy jobs for as long as I can remember, doing numerous small building jobs, to full house renovations, to landscaping to welding and fabrication, as well as working together on my family home and extending my first house.
Me and the wife bought this property in April 2017 local to us on the rural East Yorkshire coast, near Hull. It’s a 2 bed detached Victorian Lodge – the old gate house / game keepers lodge to the modest estate castle down the lane.
The property was built in approximately 1840. Solid double brick walls. Drafty timber double glazed windows and doors. Wonky interior walls, floors and doors. In the early 1990’s, it received a single story rear extension and side garage. Somewhere either before or after that it sustained heavy fire damage to the roof and first floor after a birds nest charred away eventually setting fire to the roof timbers. This resulted in a new roof and chimney stack being built. The previous owners, although a little dated in their tastes, really did a quality job on the work they did do so we have inherited a decent starting point!
Some pictures of when we bought the house:
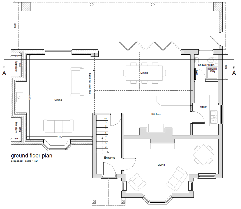
Anyway, fast forward to the year 2018 and we instructed an architect (my dad’s cousin’s son who had just opened his own practice age of 25 – we’re not a close family) to come up with a design to add at least 1 extra bedroom and create open plan living with a new lounger/diner. I had my own ideas but wanted to give him free rein. The designs were not very adventurous and lacked some pizzazz, and ultimately didn’t give us what we really wanted. I then learnt he was only an architect technician, but I felt since I had started this process with him then I should finish it with him, and any new business needs all the help it can get!
Existing plans:
I am a 30 year old aircraft engineer by trade but have worked with my dad on guvvy jobs for as long as I can remember, doing numerous small building jobs, to full house renovations, to landscaping to welding and fabrication, as well as working together on my family home and extending my first house.
Me and the wife bought this property in April 2017 local to us on the rural East Yorkshire coast, near Hull. It’s a 2 bed detached Victorian Lodge – the old gate house / game keepers lodge to the modest estate castle down the lane.
The property was built in approximately 1840. Solid double brick walls. Drafty timber double glazed windows and doors. Wonky interior walls, floors and doors. In the early 1990’s, it received a single story rear extension and side garage. Somewhere either before or after that it sustained heavy fire damage to the roof and first floor after a birds nest charred away eventually setting fire to the roof timbers. This resulted in a new roof and chimney stack being built. The previous owners, although a little dated in their tastes, really did a quality job on the work they did do so we have inherited a decent starting point!
Some pictures of when we bought the house:
Anyway, fast forward to the year 2018 and we instructed an architect (my dad’s cousin’s son who had just opened his own practice age of 25 – we’re not a close family) to come up with a design to add at least 1 extra bedroom and create open plan living with a new lounger/diner. I had my own ideas but wanted to give him free rein. The designs were not very adventurous and lacked some pizzazz, and ultimately didn’t give us what we really wanted. I then learnt he was only an architect technician, but I felt since I had started this process with him then I should finish it with him, and any new business needs all the help it can get!
Existing plans:
