Hi we have some structural calcuations and drawings which ask for the following:
Thanks!
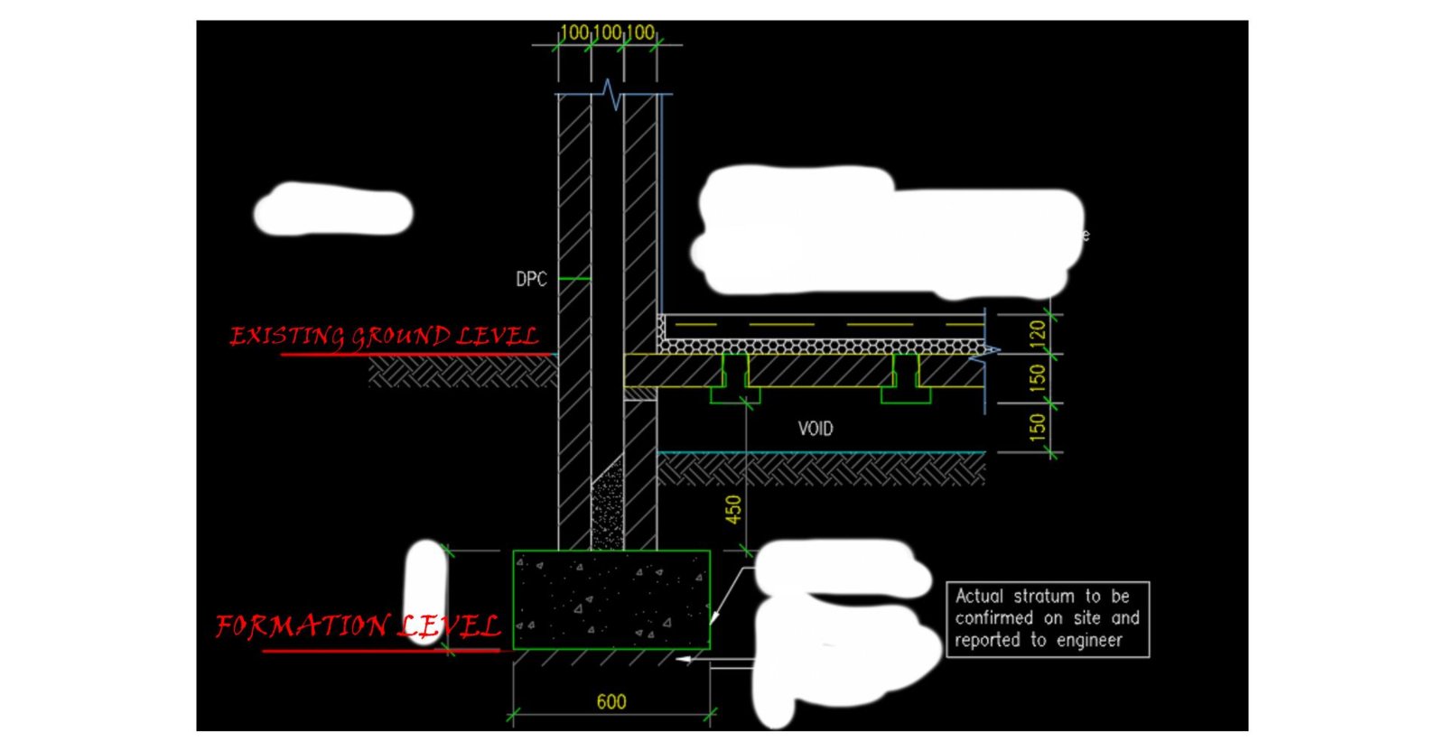
- "Minimum foundation formation level 1000mm from ground level"
- "New 450 M/C Trench Foundation"
Thanks!
