Hello everyone.
I have had an extension designed by an architect.
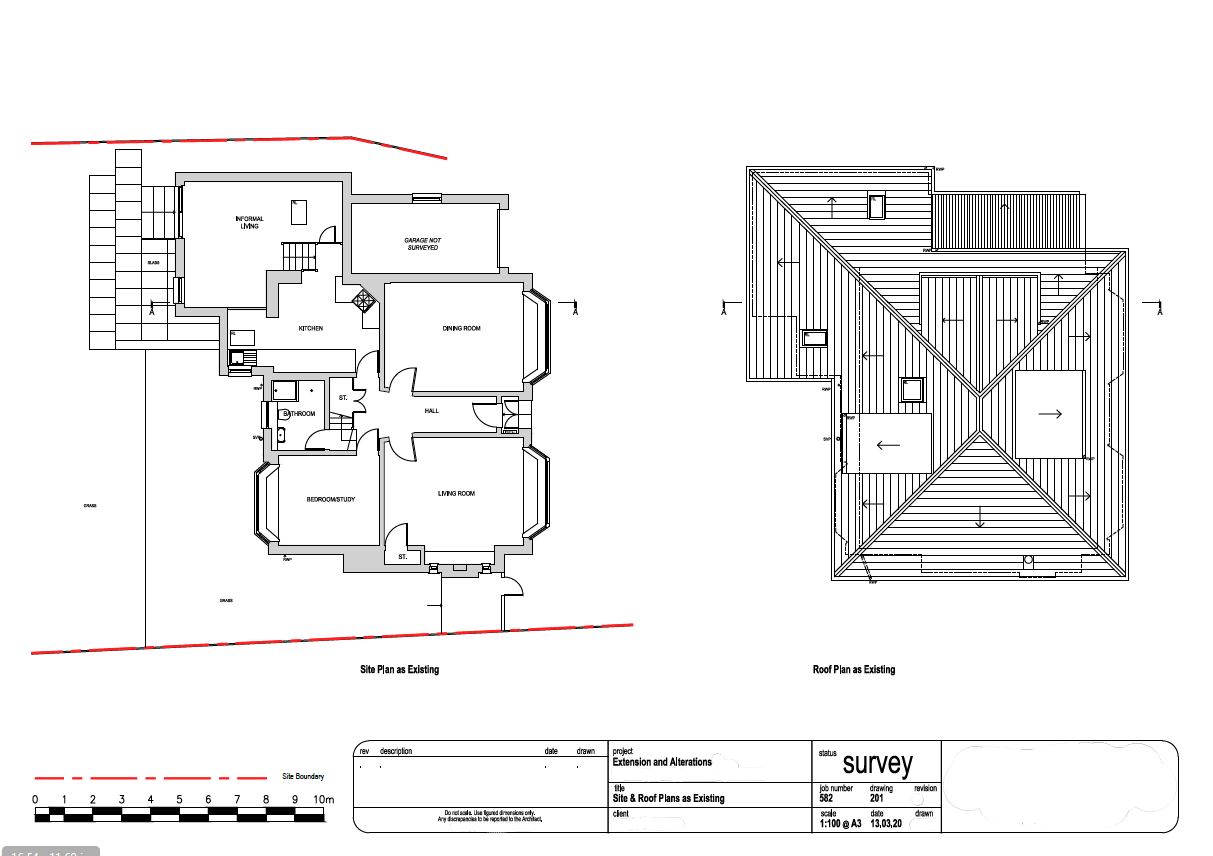
I stay in Bearsden, Glasgow.
I advised to the architect at the outset that my budget (including VAT) is £90,000.
The house floor area is 150sqm. We are adding 41.1sqm. Totally 191.1sqm
I have attached drawings of the existing building and the proposed extension.
I have been advised it would cost £145,000 with an "incentive scheme" which would reduce the VAT by 50% to make it closer to £130,000. I am unclear on the details of the "incentive scheme"; however that is not my focus at the moment.
So even at £130,000 it is £40,000 over budget.
Features of the build (with reference to the drawings):
Wet UFH in boot room, new shower room and kitchen / family room
Four panel panoramic doors
External - white through coloured render
External - Zinc
External - Western red cedar cladding
External - Composite decking
Velux windows - Five
I would be keen to hear any thoughts you may have. Is this a realistic cost?
Thanks
I have had an extension designed by an architect.
I stay in Bearsden, Glasgow.
I advised to the architect at the outset that my budget (including VAT) is £90,000.
The house floor area is 150sqm. We are adding 41.1sqm. Totally 191.1sqm
I have attached drawings of the existing building and the proposed extension.
I have been advised it would cost £145,000 with an "incentive scheme" which would reduce the VAT by 50% to make it closer to £130,000. I am unclear on the details of the "incentive scheme"; however that is not my focus at the moment.
So even at £130,000 it is £40,000 over budget.
Features of the build (with reference to the drawings):
Wet UFH in boot room, new shower room and kitchen / family room
Four panel panoramic doors
External - white through coloured render
External - Zinc
External - Western red cedar cladding
External - Composite decking
Velux windows - Five
I would be keen to hear any thoughts you may have. Is this a realistic cost?
Thanks
