Hi all,
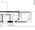
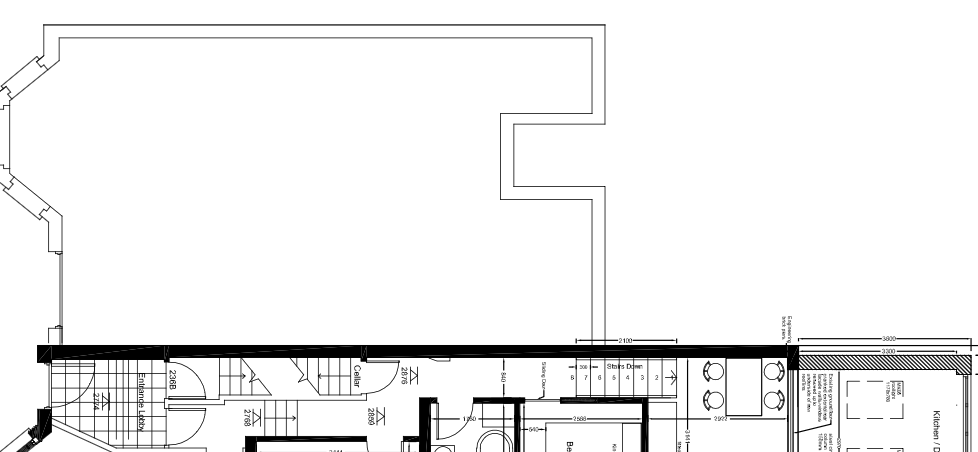
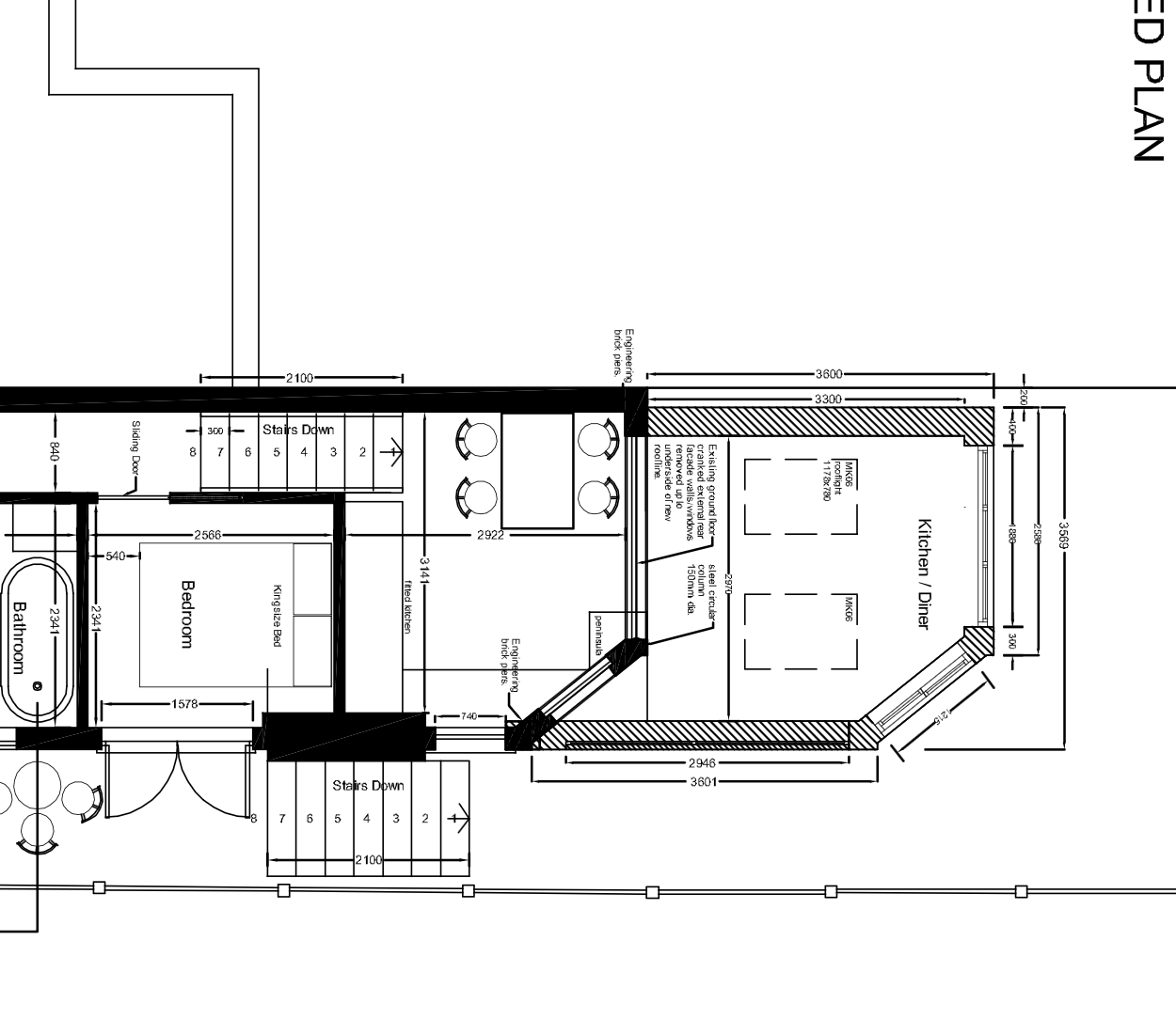
Hopefully someone can help me. I am trying to get a party wall agreed with both of my neighbours. The neighbour on the image above has taken independent advice and believes that the zone 2 wall is a party wall, rather then zone 1. My deeds are silent on the boundary/party wall definition. However, the neighbour doesn't not want to change the boundary definition, but still have a party wall applied. I've explained that he cannot have it both ways, IE for the duration of the works the zone 2 wall is a party wall and thereafter it is a boundary. Obviously the surveyor is eager to earn the fees from my side, but doesn't want to saddle his client with the duties of supporting the walls after the works, including the foundation as a shared wall, rather than my sole responsibility.
For additional clarity, zone 1 on the upper image is more than 4 metres away. Zone 2 is within the act. Appreciate a more informed decision on whether the red zone 2 is a party wall or a boundary wall.
Hopefully someone can help me. I am trying to get a party wall agreed with both of my neighbours. The neighbour on the image above has taken independent advice and believes that the zone 2 wall is a party wall, rather then zone 1. My deeds are silent on the boundary/party wall definition. However, the neighbour doesn't not want to change the boundary definition, but still have a party wall applied. I've explained that he cannot have it both ways, IE for the duration of the works the zone 2 wall is a party wall and thereafter it is a boundary. Obviously the surveyor is eager to earn the fees from my side, but doesn't want to saddle his client with the duties of supporting the walls after the works, including the foundation as a shared wall, rather than my sole responsibility.
For additional clarity, zone 1 on the upper image is more than 4 metres away. Zone 2 is within the act. Appreciate a more informed decision on whether the red zone 2 is a party wall or a boundary wall.
