- Joined
- 12 Apr 2017
- Messages
- 1
- Reaction score
- 0
- Country

Evening All
I wonder if anybody on this well informed forum can assist me as I'm left scratching my head as to what is happening with my Nest controls and boiler.
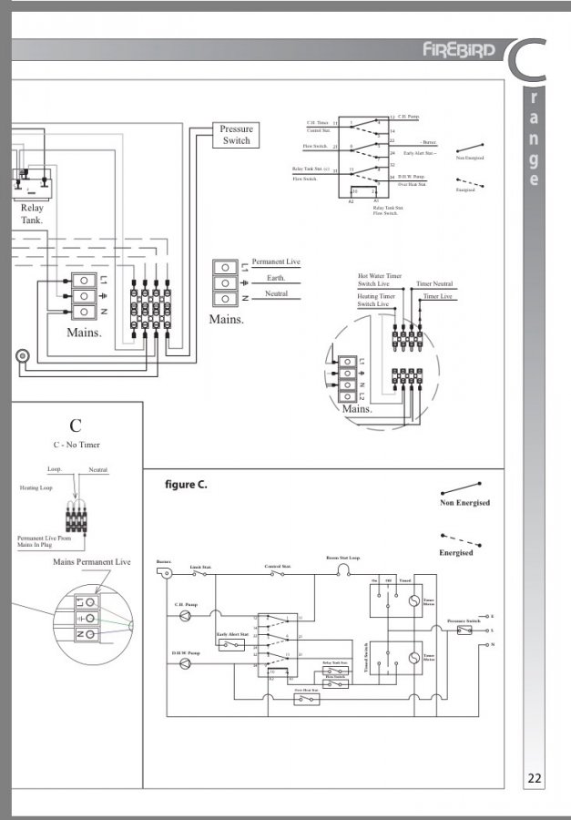
We have had the above Heatpac S boiler installed and wanted to install a 3rd Gen Nest. I have wired it in as below (excuse the L terminal wires these have now been tidied up!).
Problems we have are:
whenever the hot water tap is turned on the CH pump kicks in and rads warm up
I'm a bit baffled as to why this is. Any help would be much appreciated and gratefully received.
I wonder if anybody on this well informed forum can assist me as I'm left scratching my head as to what is happening with my Nest controls and boiler.
We have had the above Heatpac S boiler installed and wanted to install a 3rd Gen Nest. I have wired it in as below (excuse the L terminal wires these have now been tidied up!).
Problems we have are:
whenever the hot water tap is turned on the CH pump kicks in and rads warm up
I'm a bit baffled as to why this is. Any help would be much appreciated and gratefully received.