Hi all,
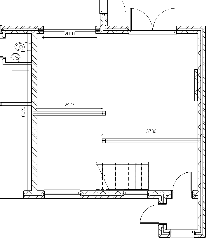
I am looking to open up my downstairs with a few RSJs and columns, see images below:
On the porch side of the house I'm not too concerned about the stability of the wall because firstly it's a cavity wall (party wall) and secondly the chimney breast adds some support to the internal skin. So I intend to support the RSJ on a 400x100x140 pad stone on my skin of the party wall.
However, the other RSJ will be supported by the single skin wall between my living room and garage (opposite wall to chimney breast). My calculations still show that a 400x100x140 pad stone is sufficient but my concern is that by removing the load bearing wall which is perpendicular to the single skin wall, the single skin wall is now 6m wide without any returns.
I'd prefer not to stiffen the wall on the living room side but am happy to build something within the garage to support the wall. Would a 215mm x 215mm masonry column at the midspan (~3m) on the garage side of the wall be sufficient? Also, how should I fix the single skin wall to the column? Clearly I can't put in ties as the single skin wall already exists.
I should note that the wall that appears within the garage will only be a stud wall so I wouldn't expect it to offer any support to the perpendicular masonry wall.
Any advice on this one would be appreciated. I can provide more information if required.
I am looking to open up my downstairs with a few RSJs and columns, see images below:
On the porch side of the house I'm not too concerned about the stability of the wall because firstly it's a cavity wall (party wall) and secondly the chimney breast adds some support to the internal skin. So I intend to support the RSJ on a 400x100x140 pad stone on my skin of the party wall.
However, the other RSJ will be supported by the single skin wall between my living room and garage (opposite wall to chimney breast). My calculations still show that a 400x100x140 pad stone is sufficient but my concern is that by removing the load bearing wall which is perpendicular to the single skin wall, the single skin wall is now 6m wide without any returns.
I'd prefer not to stiffen the wall on the living room side but am happy to build something within the garage to support the wall. Would a 215mm x 215mm masonry column at the midspan (~3m) on the garage side of the wall be sufficient? Also, how should I fix the single skin wall to the column? Clearly I can't put in ties as the single skin wall already exists.
I should note that the wall that appears within the garage will only be a stud wall so I wouldn't expect it to offer any support to the perpendicular masonry wall.
Any advice on this one would be appreciated. I can provide more information if required.
