
Great progress! Thanks for updating this thread, I'm studying all the pictures and text as I have all this to come!
Great update Andy, detailed info also, will be very helpful to lots of people I'm sure.
Excellent update! Like myself you seem to be very critical of yourself - don't be! you're doing a grand job and I'm sure tradesmen wouldn't be achieving the level of quality you are.
Awaiting the next update eagerlyI keep checking back here for the updates! Wish I had this confidence to attempt it myself so don't be negative on yourself at all!
Andy, what determined the use of a piles as opposed to the standard strip or raft foundation? Is it where the ground is very soft and an alternative to a very deep strip foundation, for example?
Your block work is perfect.
Hey all,
This thread is long overdue for an update. Work/life/DIY balance is still not in a good order, so it's tough finding the time to sit down and write up these posts.
OK, so the walls continued to go upwards and I got a bit more confident/competent with my block laying skills and it was still pretty slow going.
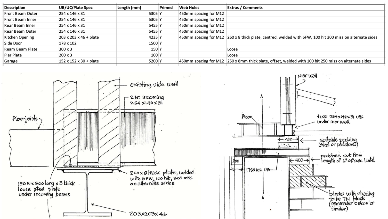
I was conscious that as I went though building the outer walls, I still needed to think about the piers that would go into the kitchen to hold the Universal Beam (UB) that would support the first floor wall in the new knocked-though kitchen and diner. I realised that I'd made a bit of a booboo by using a wall starter on the inner skin at the rear of the property for tow reasons: 1. I needed to continue the cavity and prevent cold bridging, and 2. The pier that was here needed to be made out of solid blocks and not thermalites. Thankfully with my disc cutter I was able to take out the minimum number of blocks in a wedge shape to be able to get back to the right starting point.
The first picture is basically me with the chalk working out where the various cuts, padstone and beam would be relative to the the floor above. (Although it looks like it says DEAD, this did say BEAM before the rain got to it). This is before I cut out the wall starter and blocks too.
View attachment 222064
As the eagle-eyed amongst you will see, unfortunately the flue and boiler for the house were slap-bang in the way and needed to be removed. My local gas-safe guy decommissioned the boiler for £50. We knew this had to happen, and we do have an immersion heater for the hot water.... however as I type this now in February (and with the Beast From The East 2 visiting) I can tell you it's been a pretty cold winter in our house with only some oil-filled electric radiators to warm the house
You can also see in the picture S, C, C, C, S. This is me working out the courses for my pier which is a combination of concrete 7nm blocks and concrete commons. This pier will come out one block width - it didn't need to come out this far but I'm sticking the new boiler in this corner so having a 350mm pier sticking out will hide the boiler a bit and a slightly shorter beam gives more flexibility with getting pipework back into the original house.
View attachment 222058
Out with the evolution disc cutter and you can see I made short work of the wall. I only posted the picture above as it shows how poorly the original blockwork was done (at least on the inside) and you can see the remnants of the cavity wall insulation that was done in 2013. In contrast on the pic below you can see how tidy my inside blockwork is where I needed to take out the thermalites I mentioned earlier
By the way the plastic sheeting did NOTHING to prevent the kitchen from being covered in a thick layer of dust...so I was not in the good books with the other half! The disc cutter makes all the dust, but for the price of it verses a petrol/water one for less dust, I was happy to do the cleaning up. Once the wall was cut I took my SDS drill with chisel attachment to the wall and it came apart fairly easily.
View attachment 222059
Finally got the whole of the section cleared, with the extra brick taken out above where the beam will go for the strongboy/acro, which was put in immediately after this picture.
I didn't get any pictures of me building up the pier on this side - I think I was doing it in the semi dark, so sorry about that!
Nevertheless, onto the other side of the kitchen and here I was going to have a small pier which connected into the new garage wall that was still to be build. Again I broke out the disc cutter and made myself a nice channel for (what I thought would be an easy pier). I purposely left one brick's width in place to support the back door lintel but this only left a tiny gap to work in. This picture was pre-tidy up, however what it does also show is that not only was I contending with a narrow space, but a a stud wall, a cupboard under the stairs and a joist at the top of the stairs... all of which made access from the inside virtually impossible.
View attachment 222060
I started to build up the pier and the garage wall as I went but it was tough going, especially trying to tie into the existing wall too.
View attachment 222061
Eventually I got up to padstone height. Don't ask me why I put a DPM in on the wall starter here, I don't know why I did..
View attachment 222063
However, I then realised I'd made a bit of a balls-up. When building this pier, I'd basically not gone inside and looked at it at all from the inside. Again, partly because it was awkward to get to, and partly because I just assumed if the brick's looked ok from my view outside, they'd be alright inside!
WRONG!! It was a bit of a dogs dinner. Basally there were a few uneven bricks, or that weren't particularly well centred on the brick below. It probably would have been fine, but after a couple of days considering it I decided that it had to be taken down as I wasn't 100% happy with it and this pier would not only hold up the UB for the existing house wall, but it also take the weight of the RSJ's at 90 degrees that would hold up the bedroom and roof of the extension.
I was so annoyed at myself for not being more sensible as I built, that I didn't take any photos of this bit. However I proceeded to demolish the built pier and part of the garage wall that went along with it. I then decided to take out the the last bit of brickwork that had been left to support the back door lintel to give myself a bit more space to work in. I then rebuilt and ensured that I continually went inside with each course to ensure it was all good from that side to.
Finally the garage wall was built too... although I wouldn't recommend working on a scaffold board like this... I just couldn't be bothered with my scaffold tower for the last couple of courses. Oh, you can kind of see in this picture that the external walls have grown a bit too by this point
View attachment 222065
In hindsight I am happy I spent the time/effort that I took to redo that pier, as I think it would have bothered me forever more if I'd left it as it was.
Although it's not the greatest picture as the insulation board had started to go in to block some of the gaps up, you can at least see the pier on the left now built - both of them would have a padstone to go on top but having read some of the other threads about that I elected to get the beam in and then fit the padstones afterwards.
And before you ask, most of those gaps/insulation are still there to this day (February) and my other half no long goes into our walk-in freezer (formally known as the kitchen)
You may also notice a lump of red steel in this photo... but more on that in my next post!
View attachment 222062
After all that fun and excitement at the back of the house, the front of the property also needed a bit of destruction caused to it with a space for two RSJs and a padstone... but to be honest with you that was a walk in the park in comparison! Here's me chopping it out - which was a combination of stitch drilling with the SDS drill and my evo cutter, before chiselling it out with the SDS.
You can see how much mortar the original brickies managed to lose down the cavity!
View attachment 222057
Ok that's my 10 photo limit again, but I'll try not to leave it so long before the next update. I think I wasted about £50 in blocks and bricks with my re-building, but I'd not really spent any more money worth reporting by this point so the rolling total spend was still £23.5k.
Thanks for reading
Andy![]()
Thanks.Amazing progress considering the weather recently! Have you got wheels for the scaff tower? I had some made for mine and it makes it so much easier to move around the slab!

Thanks very muchBloody well done mate! That's a hell of an effort.
Must admit, I do have a twinge of regret for not sticking out the blockwork a bit - especially when the builder/brickie showed up and said "Awesome, you've done all the difficult stuff".
Very happy with my Plasmor blocks - I actually went aglite in the end. Glad to see somebody else agonising over the choices. These are bits where you save so much time on your next project, because you know precisely what you want!
If you need to find a tradesperson to get your job done, please try our local search below, or if you are doing it yourself you can find suppliers local to you.
Select the supplier or trade you require, enter your location to begin your search.
Are you a trade or supplier? You can create your listing free at DIYnot Local