R
RossyH
Hi all,
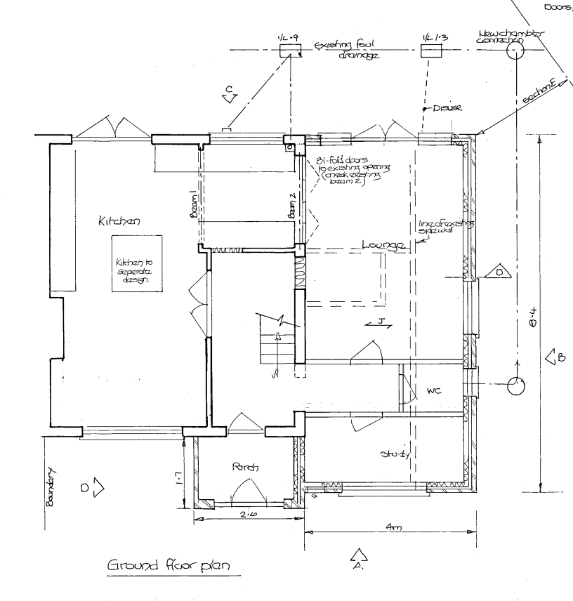
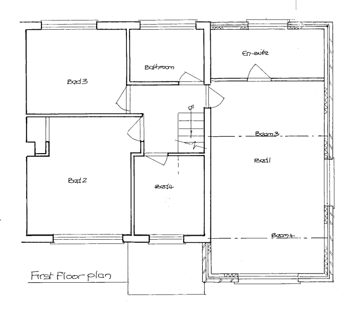
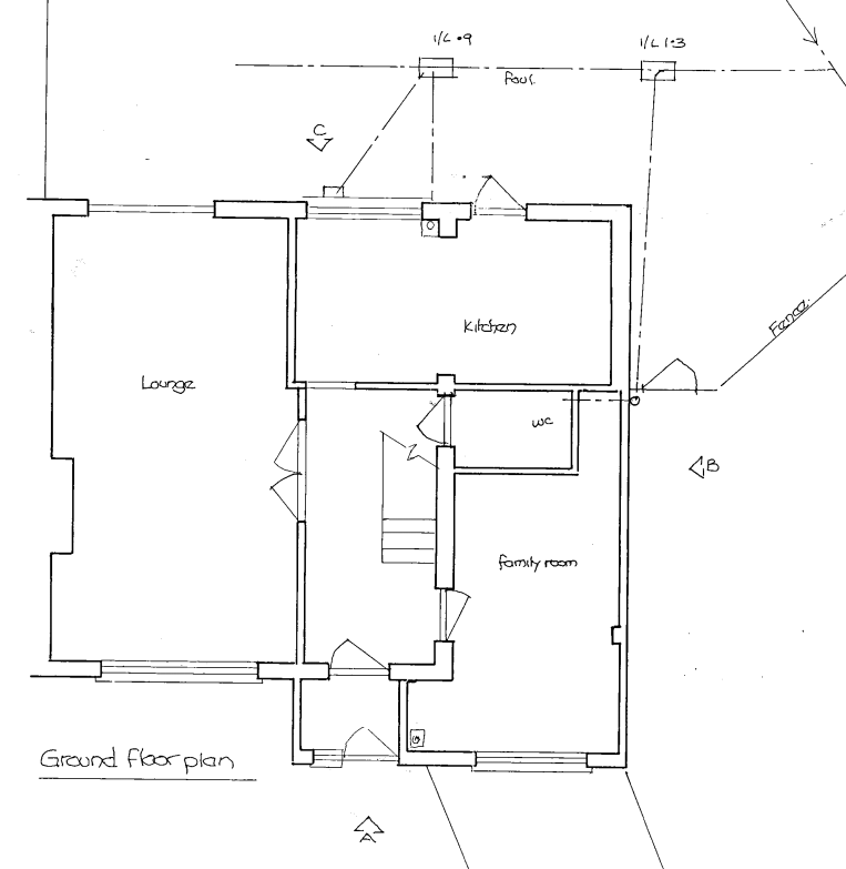
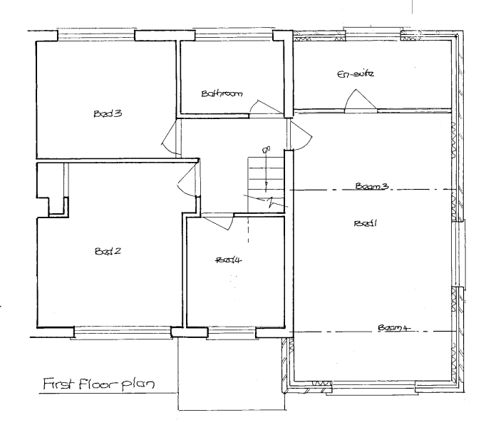
New to the forum. We are about to start a double story side extension and house renovation works on our 3 bed semi. We will be building a new lounge and study area to the side, plus a new master bedroom & ensuite above. Will are also opening up the kitchen in to the old lounge/dining area to create a new kitchen / diner.
I will add some pics of the house soon, but here are the plans. (They have changed slightly from these). Will also add pics as we go and hopefully we can get some good ideas & suggestions from the forum.
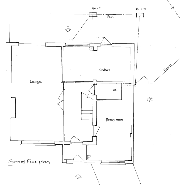
Existing plans:

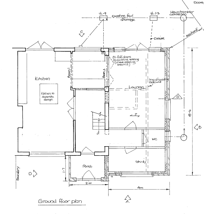
Preposed plans:

Ross
New to the forum. We are about to start a double story side extension and house renovation works on our 3 bed semi. We will be building a new lounge and study area to the side, plus a new master bedroom & ensuite above. Will are also opening up the kitchen in to the old lounge/dining area to create a new kitchen / diner.
I will add some pics of the house soon, but here are the plans. (They have changed slightly from these). Will also add pics as we go and hopefully we can get some good ideas & suggestions from the forum.
Existing plans:
Preposed plans:

Ross





