- Joined
- 8 Mar 2020
- Messages
- 2
- Reaction score
- 0
- Country

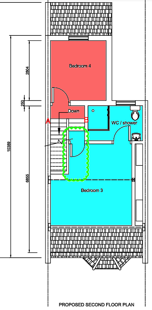
Evening folk,
I was wondering if you helpful lot could give some suggestions on how to frame the new floor landing of a loft conversion.
Basically I'm having a double dormer loft conversion which is set over two levels. They are accessed by a dog leg staircase, the first flight of which reaches a half landing at level 1 (red) and the second flight of which reaches the main loft space at level 2 (blue).
I need to support both landings. The easy thing to do would be to attach a trimmer from point A to point B, which could support both the half landing, and have a post at mid span sitting on said trimmer that could support the level 2 landing (i.e. the bit in the green cloud). The problem is that the wall underneath point B is a flimsy 3x2 stud wall that sits on a single joist.
I am baffled at how to frame this. Is there any simple/common way to do this that I'm missing? I found a photo of a post supported landing online (attached) but I don't really want to use this if I can help it.
Cheers all

I was wondering if you helpful lot could give some suggestions on how to frame the new floor landing of a loft conversion.
Basically I'm having a double dormer loft conversion which is set over two levels. They are accessed by a dog leg staircase, the first flight of which reaches a half landing at level 1 (red) and the second flight of which reaches the main loft space at level 2 (blue).
I need to support both landings. The easy thing to do would be to attach a trimmer from point A to point B, which could support both the half landing, and have a post at mid span sitting on said trimmer that could support the level 2 landing (i.e. the bit in the green cloud). The problem is that the wall underneath point B is a flimsy 3x2 stud wall that sits on a single joist.
I am baffled at how to frame this. Is there any simple/common way to do this that I'm missing? I found a photo of a post supported landing online (attached) but I don't really want to use this if I can help it.
Cheers all
