Hi all
Hope everyone is well!
I need some help as getting conflicting advice from some heating engineers I’ve had around to quote.
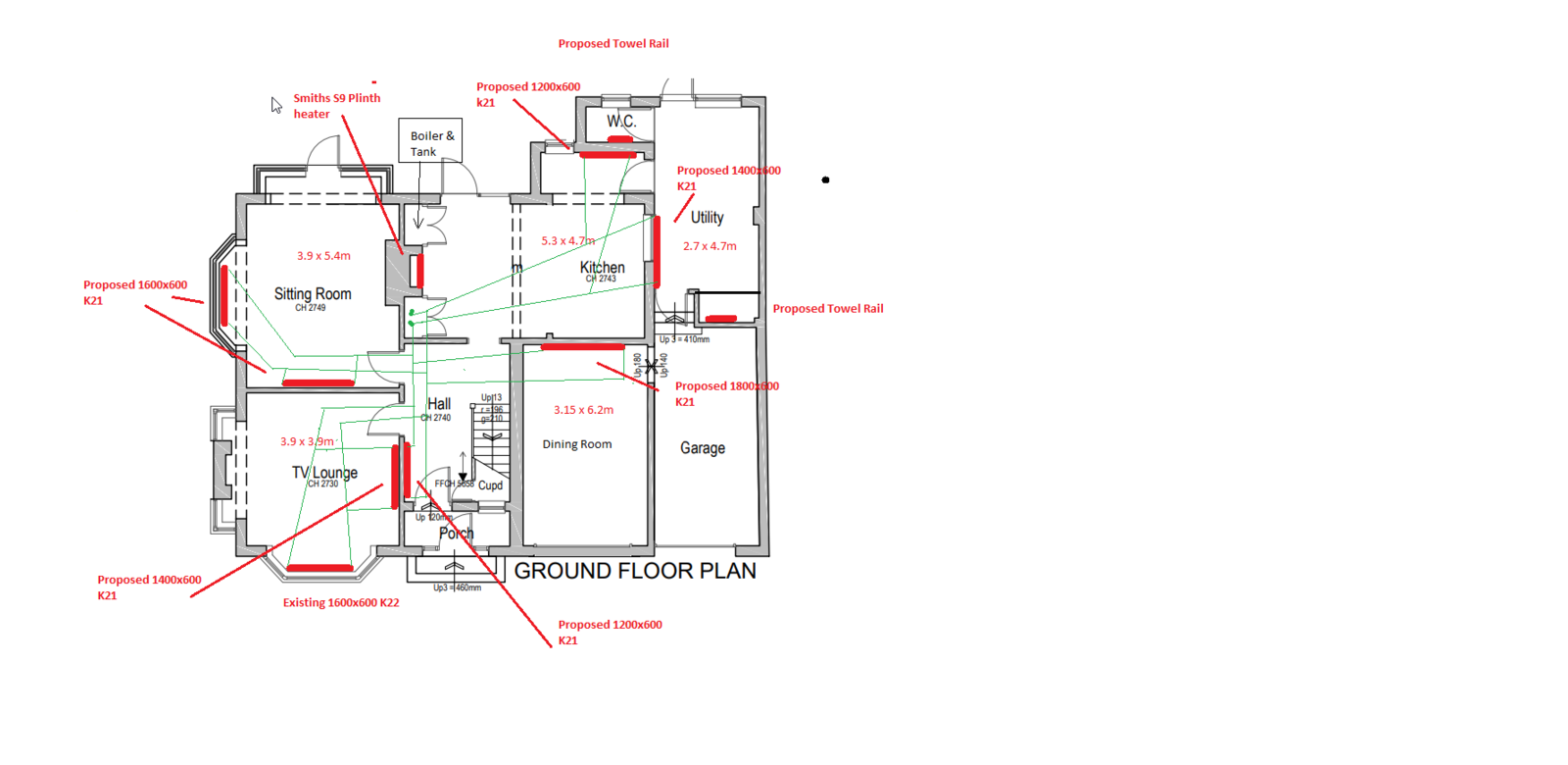
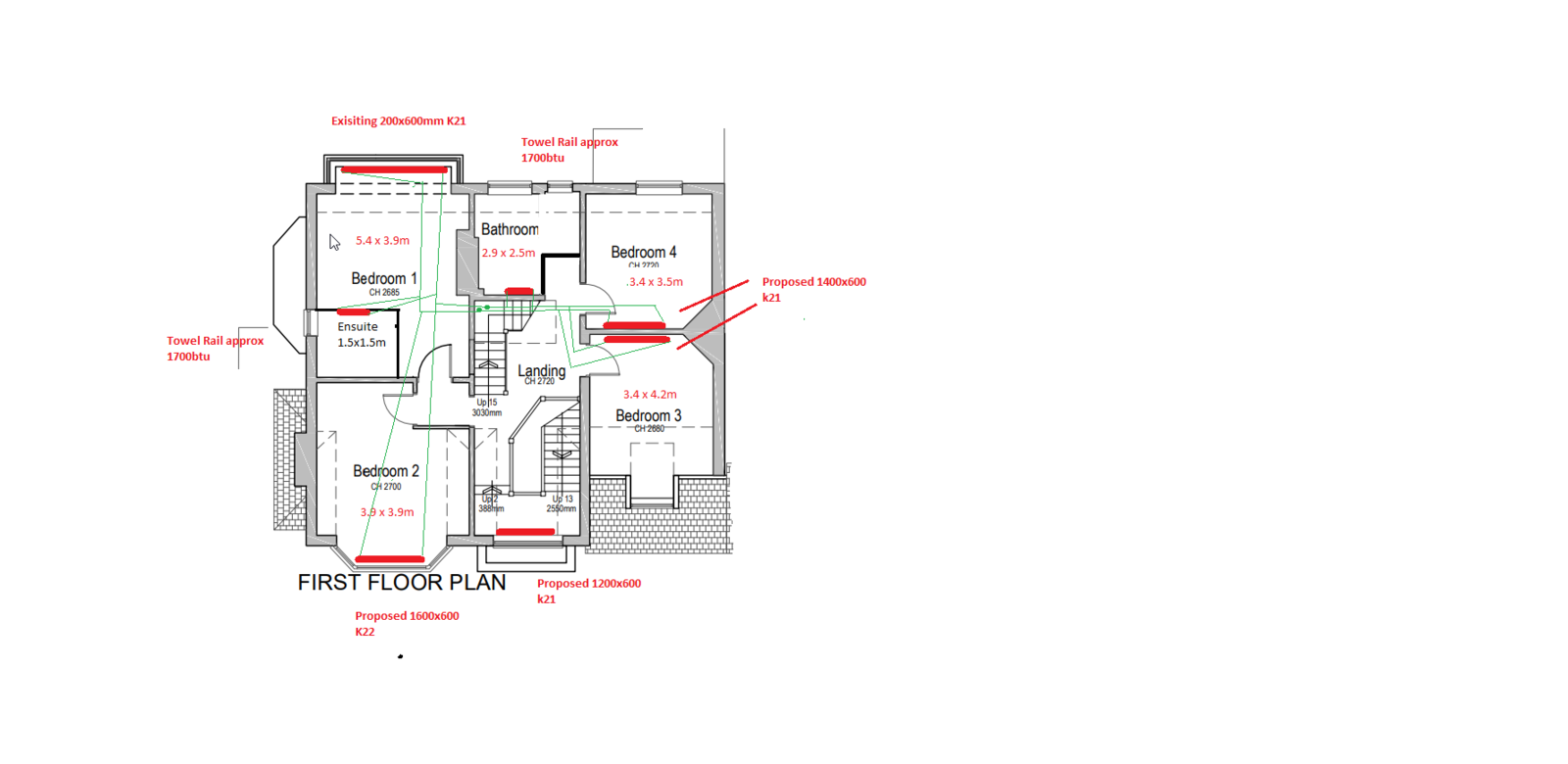
I currently have a gravity fed system which when we moved in a couple of years ago was on a W plan, which I immediately had changed to a S+ plan. Current boiler is a Valiant ecotec plus 438, set at part load as it cycles a lot. Not not if boiler is 100% right. We are planning renovations for next year and want to move the boiler as well as upgrade to an unvented cylinder (new water mains needed as well). The house has 3 floors and will end up with 21-23 radiators in total, some large ones but also some smaller ones. Currently pipework comes off valves at 22mm and then predominantly 15mm runs everywhere.
Now I’ve had a few heating guys over and I’ve been told my current boiler size is fine @ 38kw but also some state an 18kw one would suffice as well. They all said to put new runs of 22mm in and drop down to 15mm for each radiator.
Can anyone help with advice/suggestions. I’m a bit stuck as to what is correct, changing the boiler isn’t an issue if it needs it.
Thanks in advance
Draw it out with all the rad sizes, take pics of the outside of the house, tell me how much loft insulation you have and whether there's cavity fill and how you think the pipe are sized are run and for a bit of fun I'll do the lot. It will not be done this week probably but I'd be surprised if it doesn't surprise you.


