Our PP:
We have a semi-detached bungalow in a Greenbelt Settlement, but not in a Conservation Area. We were granted PP for a wrap around extension along the side and rear, as well as a new relocated porch at the front. The PP Decision Notice stated "Demolition of existing garage and conservatory. Erection of single storey extension to side/rear elevation and porch to front elevation".
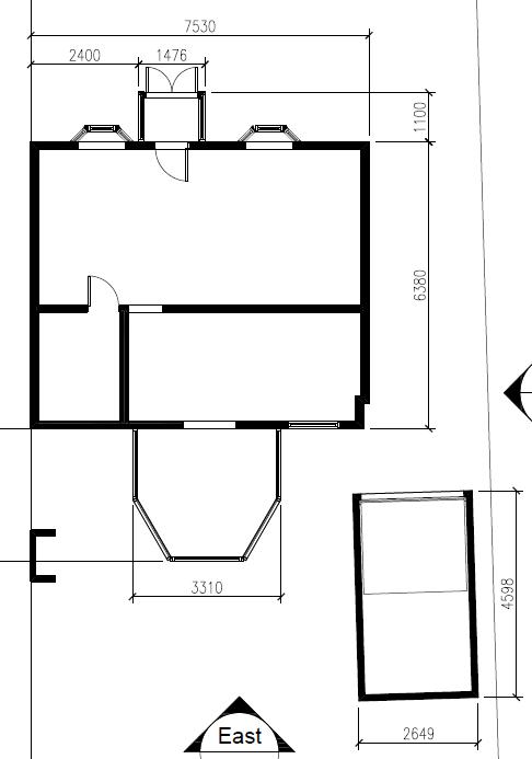
Our drawings, which were submitted as part of our application clearly show that the existing external walls, which would become the internal walls once the bungalow is extended, are to be demolished and a new floor plan will be created. Furthermore, the drawings also show a completely new roof plan which is to be supported by these walls.
Works Undertaken To Date:
We have so far demolished all the walls except the front wall and obviously our party wall. We have removed the entire roof except around 1m from the party wall. We have also dug up all the old floors in preparation to form one new insulated concrete floor. We have also removed the windows and front door from the front wall. Effectively, bar the party wall, all that currently remains of the old house is the front wall and a couple timber joists from the old roof.
We have now poured the footings, installed all the new drainage, and built all the new walls upto DPC. Everything is as per the drawings we submitted for PP.
Our Urgent Issue:
Today we received an email from the planning officer stating that they have received a complaint that the work we are undertaking is not in line with the PP we were granted. The reason is that "the property has been substantially demolished, for which we do not have planning permission, and we would need to apply for planning permission to rebuild the property". The officer also advises us to stop work immediately and that our case has already been passed onto the enforcement officer.
Are We Really In Trouble?:
I spoke with the officer this afternoon and confirmed that we are building in line with the drawings. By comparing the existing and proposed drawings, it is clear which walls are to remain. The officer hinted at the fact that we should have built the wrap-around extension first, and then demolished the existing external walls once they have become internal walls. The fact that this would have been difficult (and expensive) to achieve is of no concern to them and only concerns Building Control.
I'm gobsmacked! The officer requested a photo of the site. I need to reply, but am not sure where I stand in all of this. Am I truly in the wrong for following the drawings to the 't' and have fallen foul of the fact that the Decision Notice doesn't state "demolish the existing rear and side walls and demolish the roof"? Surely it's mad that they are telling me what order I should build in!?[/b]
Plans:
Existing:
Proposed:
Block Plan:
Existing Elevation:
Proposed Elevation:
Decision Notice:
We have a semi-detached bungalow in a Greenbelt Settlement, but not in a Conservation Area. We were granted PP for a wrap around extension along the side and rear, as well as a new relocated porch at the front. The PP Decision Notice stated "Demolition of existing garage and conservatory. Erection of single storey extension to side/rear elevation and porch to front elevation".
Our drawings, which were submitted as part of our application clearly show that the existing external walls, which would become the internal walls once the bungalow is extended, are to be demolished and a new floor plan will be created. Furthermore, the drawings also show a completely new roof plan which is to be supported by these walls.
Works Undertaken To Date:
We have so far demolished all the walls except the front wall and obviously our party wall. We have removed the entire roof except around 1m from the party wall. We have also dug up all the old floors in preparation to form one new insulated concrete floor. We have also removed the windows and front door from the front wall. Effectively, bar the party wall, all that currently remains of the old house is the front wall and a couple timber joists from the old roof.
We have now poured the footings, installed all the new drainage, and built all the new walls upto DPC. Everything is as per the drawings we submitted for PP.
Our Urgent Issue:
Today we received an email from the planning officer stating that they have received a complaint that the work we are undertaking is not in line with the PP we were granted. The reason is that "the property has been substantially demolished, for which we do not have planning permission, and we would need to apply for planning permission to rebuild the property". The officer also advises us to stop work immediately and that our case has already been passed onto the enforcement officer.
Are We Really In Trouble?:
I spoke with the officer this afternoon and confirmed that we are building in line with the drawings. By comparing the existing and proposed drawings, it is clear which walls are to remain. The officer hinted at the fact that we should have built the wrap-around extension first, and then demolished the existing external walls once they have become internal walls. The fact that this would have been difficult (and expensive) to achieve is of no concern to them and only concerns Building Control.
I'm gobsmacked! The officer requested a photo of the site. I need to reply, but am not sure where I stand in all of this. Am I truly in the wrong for following the drawings to the 't' and have fallen foul of the fact that the Decision Notice doesn't state "demolish the existing rear and side walls and demolish the roof"? Surely it's mad that they are telling me what order I should build in!?[/b]
Plans:
Existing:
Proposed:
Block Plan:
Existing Elevation:
Proposed Elevation:
Decision Notice:
