Question on combined PD & PP

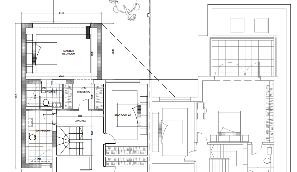
Hi all, back again. Ours plans are now in and we are playing the waiting game. Whilst looking at other recently submitted applications something triggered inside with respect to my application so i wanted to check something. Our Local Authority apply the 45 degree rule from the edge of the nearest habitable window, however i noticed my architect has applied the 45 degree rule from the middle of the nearest window next door. There is another complication in that our house is stepped back from next doors and so it wouldn't be possible to draw a 45 degree line from this point (you could but you'd hit a wall). I've attached the plans to hopefully make more sense.

Question, in my scenario, how would the 45 degree rule apply in this instance and are my plans in breach of this as they stand?
 

Attachments

  • 45 Degree.png
    45 Degree.png
    93.2 KB · Views: 210
It's conceivable that the LPA will ask you to reduce the depth of the extension by ca. 200mm, but I doubt it - unless there's a specific objection from your neighbour.
 

Attachments

  • 45rule.jpg
    45rule.jpg
    127.4 KB · Views: 194
Cool many thanks, certainly not a deal breaker then and good to know. Taking the 45 degree from the edge of the window certainly would have caused some issues.
 
It would also have defied logic - not that that's necessarily a barrier when it comes to LPAs!
 

If you need to find a tradesperson to get your job done, please try our local search below, or if you are doing it yourself you can find suppliers local to you.

Select the supplier or trade you require, enter your location to begin your search.


Are you a trade or supplier? You can create your listing free at DIYnot Local

 
Back
Top