Help!
Hoping someone might be able to suggest a practical way forward for our confusing situation.
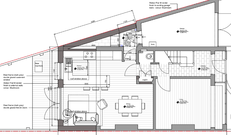
We've developed drawings for an awkward site that's on a hill with a tapering plot. We want to build a lean-to PD extension at the rear, and join this to an existing garage at the side by building a narrow triangular extension. The triangle and the garage would be given an update with coloured render.
The triangle part of the plans, together with the coloured render, have been approved under planning rights.
We then look to get our PD approved, and were advised by our architect to submit an amendment to the granted planning, which noted the coloured render on this PD rear extension.
The council have said that we can't do both, but the implication is that they would accept a multi-finish combined building - i.e., a PD in white at the rear, with side extension in coloured render.
That surely can't be the most sympathetic design!
We're in a tight spot. Our architect is washing his hands of this, effectively. We don't know how to resolve it, but it seems to me there might be a series of steps by which we can:
1 - apply for PD with white finish as per the 'host' building
2 - subsequently submit an amendment to the planning permission that 'loops in' the PD section to stipulate the coloured render
Would we need to build one part of this first??
Or,
1 - apply for PD with coloured render finish as per the granted side extension, expecting it to be declined
2 - submit an appeal to the PD decision, citing the prior approved planning application with coloured render.
Would either work? And are we at a disadvantage given that we've already spoken informally with planning officers?
(The council have suggested that we either,
- amend the triangle extension planning application to make it white
- redesign the rear extension under planning criteria (which I struggle to see would would work, given our higher level on the hill; tapering plot; additional cost
)
As the coloured render is already approved on our planning application, it just seems it would be minor to request this to be on the PD rear extension too (knowing that planning is more stringent than PD overall).
Perhaps we want to have our cake and eat it - but we were given advice to proceed in this way by our architect, and that has to count for something surely? What do you think?)
I would be extremely grateful for any and all advice you can offer. Thank you.
Hoping someone might be able to suggest a practical way forward for our confusing situation.
We've developed drawings for an awkward site that's on a hill with a tapering plot. We want to build a lean-to PD extension at the rear, and join this to an existing garage at the side by building a narrow triangular extension. The triangle and the garage would be given an update with coloured render.
The triangle part of the plans, together with the coloured render, have been approved under planning rights.
We then look to get our PD approved, and were advised by our architect to submit an amendment to the granted planning, which noted the coloured render on this PD rear extension.
The council have said that we can't do both, but the implication is that they would accept a multi-finish combined building - i.e., a PD in white at the rear, with side extension in coloured render.
That surely can't be the most sympathetic design!
We're in a tight spot. Our architect is washing his hands of this, effectively. We don't know how to resolve it, but it seems to me there might be a series of steps by which we can:
1 - apply for PD with white finish as per the 'host' building
2 - subsequently submit an amendment to the planning permission that 'loops in' the PD section to stipulate the coloured render
Would we need to build one part of this first??
Or,
1 - apply for PD with coloured render finish as per the granted side extension, expecting it to be declined
2 - submit an appeal to the PD decision, citing the prior approved planning application with coloured render.
Would either work? And are we at a disadvantage given that we've already spoken informally with planning officers?
(The council have suggested that we either,
- amend the triangle extension planning application to make it white
- redesign the rear extension under planning criteria (which I struggle to see would would work, given our higher level on the hill; tapering plot; additional cost
As the coloured render is already approved on our planning application, it just seems it would be minor to request this to be on the PD rear extension too (knowing that planning is more stringent than PD overall).
Perhaps we want to have our cake and eat it - but we were given advice to proceed in this way by our architect, and that has to count for something surely? What do you think?)
I would be extremely grateful for any and all advice you can offer. Thank you.
