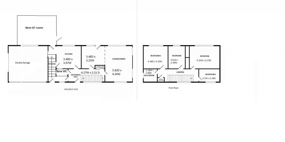
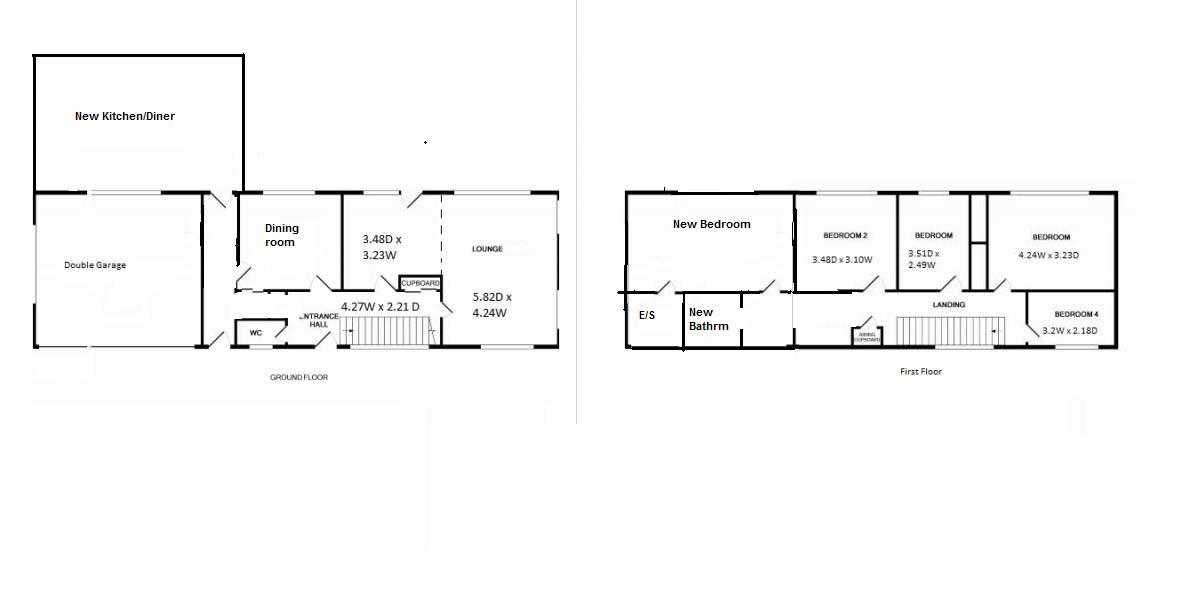
I wanted to add a circa 4mx4m two storey extension to add an extra bedroom and extend the kitchen or dining room downstairs but cannot decide on the best place to put it so as not to lose too much existing floor space? Anyone have any ideas as to where the best place to put it would be?
