Extended ring circuit

Methods 100, 101, 102 & 103 for a start, and maybe with other de-reating factors.
Yes thanks, I obviously know that, and, as you have reasoned, that makes Risteard's comments (suggestions) wrong in the other direction as well.

He is doing it the wrong way round, isn't he?

However, as I've just written, I would say that it's far better to think than to rely on a rule of thumb which is based on a relatively uncommon 'bad' (but not 'worst') case scenario.
Obviously then, there is no such rule of thumb - or if there is then it is nonsense.
 
Don't be silly John.
I don't think it's silly to suggest that electricians, in any country, should think for themselves, rather than rely on rules of thumb (which. more-or-less by definition, will far from always be optimal).
I would suggest that it is British Electricians who think that 1.5mm^2 lighting circuits on 6A circuit breakers or 2.5mm^2 radial circuits on 16A circuit breakers (other than for the likes of an immersion heater) are sensible solutions who are incapable of intelligent design.
Dead right! The failure of some electricians to think is certainly not restricted to any particular country.

Electrical work seems to have more than its fair share of 'perpetuated myths' ("that's what we've always done" etc.), the perpetuation again being due to a failure (and/or inability) to think.

Kind Regards, John
 

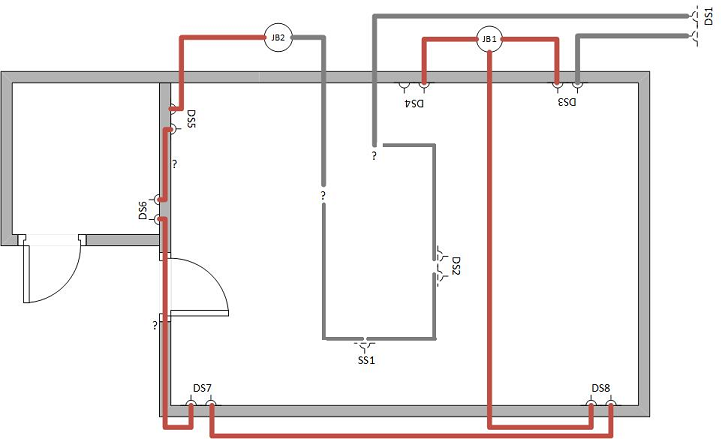
So, I've spent quite a bit of time today crawling around the eaves of my loft, attempting to trace the route of the socket cables and have produced the diagram above showing what I found. The grey lines are grey 2.5mm cables, which I suspect are from the original house build and the red/brown lines are white 2.5mm cables, which I believe were added as part of the loft extention, 16 years ago.

The sockets DS1, DS2 and SS1 are located on the 1st floor in bedrooms and each of these has two grey 2.5mm cables entering the backbox from above. I have been able to confirm the bedroom socket DS1 is definitely being fed from the loft and I have traced the two grey cables, one of which goes to a loft socket (DS3) and the other disappears under the floor and I'm unable to track it due to insulation, hence the question mark. There is another grey cable from under the floor, which connects to a white cable via JB2.

There's a question mark against the white cable between DS5 and DS6, and also DS6 and DS7 because I can't follow these white cables under the flooring, but I'm pretty sure they are following the suggested route.

When we bought the house 21 years ago, we paid a little extra to have the loft "formed" and also to have electrics made available to the loft, so I suspect this is why the grey cables and some of the bedroom sockets are fed from the loft rather than from below the bedroom floors.

My suspicion is that DS2 and SS1 are being supplied by the original grey cables, but I can't confirm that.

So, it would appear that DS4 is a spur and possibly not the end of a 5 spur radial circuit connected to the ring circuit. This is the only socket in the loft with a single cable, hence the reason I originally thought it was the end of the spur. It does look as though the other loft sockets are part of the ring circuit that runs around the 1st floor bedrooms.

Does this seem a reasonable assumption? Is there any way I can test this?

If, for example, I disconnected one of the cables at DS7. If this was part of a ring circuit, the other cable should still be providing power, so the socket should still work. Likewise, all other sockets should continue to work?
 
So this looks safer than you said in your first post, as there is only 1 spur.

So they either:

1) broken in the original ring and added the sockets, which is the correct way under the conditions.
2) Added another ring onto a ring.
 
Obviously then, there is no such rule of thumb - or if there is then it is nonsense.
The thing about "rules of thumb" is that they are, by definition, not always correct/accurate. They therefore have no place in potentially safety-critical situations (e.g. when there is a risk of them resulting in use of an undersized cable) and are far from ideal in any situation (e.g. since they may result in the use of unnecessarily over-sized cable).

Kind Regards, John
 
Just to say - if this is the situation, then all is fine and proper.

upload_2019-8-21_20-14-16.png
 
Oops, sorry I appear to have interrupted a discussion about who are the best electricians - the Irish or the English. Only joking ;)

Just to say - if this is the situation, then all is fine and proper.

So this looks safer than you said in your first post, as there is only 1 spur.

Yes, even with my limited knowledge I feel happier about the wiring than I did this morning, so it was worth mapping it out. I also suspect the grey cables do run to SS1 and DS2 given that both these sockets have two cables and both enter from above.

So, with the assumption that this is one large ring circuit, including 1st floor bedrooms and loft (with a single spur to DS4 - I wonder why they did this!), can I prove this by disconnecting one of the cables at, for example, socket DS7? If it wasn't a large ring circuit, wouldn't this socket, or possibly socket DS6 or DS8 stop working? If they all continue to work doesn't this prove it is a ring circuit?
 
Yes, even with my limited knowledge I feel happier about the wiring than I did this morning, so it was worth mapping it out. I also suspect the grey cables do run to SS1 and DS2 given that both these sockets have two cables and both enter from above.

If you ever have to do that again, you can buy cable tracers. They come in two parts, a signal injector and a receiver. You just connect the injector to the end of the cable you want to trace, then follow the hidden cable with the receiver. The receiver works for several inches away from the cable, even buried in walls.
 

If you need to find a tradesperson to get your job done, please try our local search below, or if you are doing it yourself you can find suppliers local to you.

Select the supplier or trade you require, enter your location to begin your search.


Are you a trade or supplier? You can create your listing free at DIYnot Local

 
Back
Top