Joining my new 6m rear extension to neighbour's existing 3m rear extension

Joined
3 Jun 2016
Messages
24
Reaction score
0
Country
United Kingdom
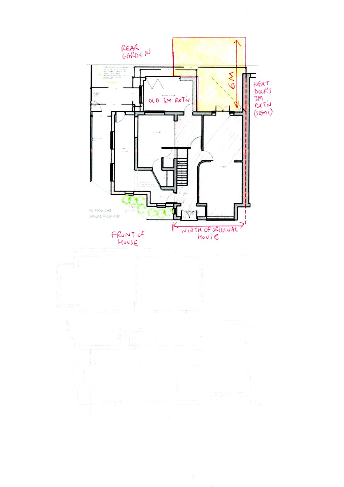
(1) I understand if I get a partywall agreement I can join my rear extension onto the neighbours, however my main query is that his rear single story extension which was built 13yrs ago goes over our land by about 20cm, so can I just build a single leaf blockwork extension rather than doing double leaf as it will eat into our extension size? Is it building control's decision?

(2) His extended roof is flat, ideally we would have perferred slightly pitched tile. Can you advise if my extension should match his in terms of height and type? I am also having a dormer put on so I guess a flat roof is better if I ever need access to roof for maintenance/gutter cleaning using a ladder?
 
Is your house currently attached to or detached from the neighbour's house? If detached, linking the two could adversely affect the property price of both.
 
Hi it's an old semi. I attach a photo of the rear garden where the rear new L-shape 6m extension will go. You can see the neighbour's extension already there and over-hanging our garden slightly. I don't know how he achieved that extension 15yrs ago as an old widow used to live in our house - I doubt he will show his old party-wall agreement drawings. Many thanks in advance for your advice...
 

Attachments

  • rear view 2 showing neighbours lofts.jpg
    rear view 2 showing neighbours lofts.jpg
    376.2 KB · Views: 482
  • Permitted Dvmt 6m L shape allowed or not.jpg
    Permitted Dvmt 6m L shape allowed or not.jpg
    80.1 KB · Views: 474
Any Party Wall agreement has to be declared in the sellers form so it is worth checking to see if there was one. If there isn't then your position if anything is better.

However I wouldn't worry about the exact line of boundary too much as you have to build 15cm inside your foundations anyway. You can only attatch if you are doing the same thing re extension, I doubt you will be having a flat roof like that.

I can't help wondering where the drainage is on your neighbours extension. Hopefully the water is not flooding over to your property!
 
Do the pictures and plans match? Is that an old photo? Where is the 'old extension' mention in the plans?
 

If you need to find a tradesperson to get your job done, please try our local search below, or if you are doing it yourself you can find suppliers local to you.

Select the supplier or trade you require, enter your location to begin your search.


Are you a trade or supplier? You can create your listing free at DIYnot Local

 
Back
Top