- Joined
- 11 Jan 2018
- Messages
- 4
- Reaction score
- 0
- Country

Hello All,
First off - My apologies for yet another nest install post. I just dont want to get it wrong and am installing myself. No previous knowledge of boiler work but a family memeber kindly purchased us one for Christmas but I cannot afford for a specialist to do it for me.
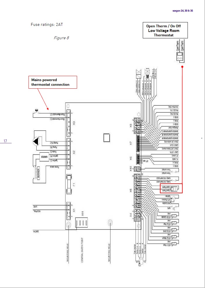
Within the manual for the boiler it says mains powered thermostat and open therm which are boath highlighted in red which i have managed to locate on the actual boiler. However in the manual it says (room thermostat live, room thermostat live) on both wire inputs of the circuit.
I thought one should be (N) Neutral.
I dont want to make the wrong connection if anyone could please advise? please see below for the manual - unfortunately this is an old model and the image quality within the manual is pixelated.
Within the manual it is pg.19
http://www.heatline.co.uk/wp-content/uploads/2013/09/Sargon-24-30-and-35-manual.pdf
Read more: https://www.diynot.com/diy/conversa...e-sargon-24-combi-boiler.33240/#ixzz53tE2HgIY
First off - My apologies for yet another nest install post. I just dont want to get it wrong and am installing myself. No previous knowledge of boiler work but a family memeber kindly purchased us one for Christmas but I cannot afford for a specialist to do it for me.
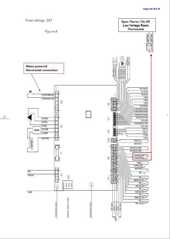
Within the manual for the boiler it says mains powered thermostat and open therm which are boath highlighted in red which i have managed to locate on the actual boiler. However in the manual it says (room thermostat live, room thermostat live) on both wire inputs of the circuit.
I thought one should be (N) Neutral.
I dont want to make the wrong connection if anyone could please advise? please see below for the manual - unfortunately this is an old model and the image quality within the manual is pixelated.
Within the manual it is pg.19
http://www.heatline.co.uk/wp-content/uploads/2013/09/Sargon-24-30-and-35-manual.pdf
Read more: https://www.diynot.com/diy/conversa...e-sargon-24-combi-boiler.33240/#ixzz53tE2HgIY