I’m a changing my downstairs toilet, when looking into the dimensions of the new one I have a few questions about the pan connector. I have attached a couple of photos of my current connector too. Which comes from the side wall, turns 90 degrees and into the pan. The other photo is the rough style of toilet I want/need.
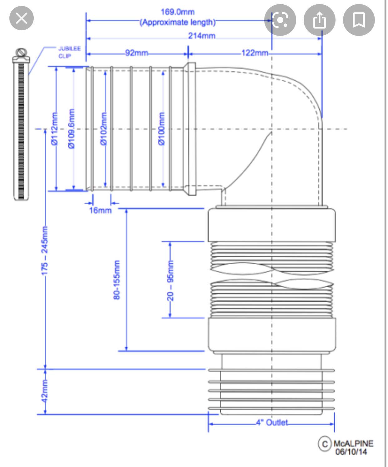
I know I need some ‘cutout’ to allow the side entry but as you can see the current one has loads of room but the new one only has enough room for a pan connector plus a bit of wriggle room. Is there a flexible elbow connector that’s best to use so I can bend it closer the wall and then 90 into the pan?
Hope that makes sense!
EDIT: Just look and those photos of my current connection are deceiving, the current pipe is further away from the wall than it looks, I need to go back towards the wall about 20mm
I know I need some ‘cutout’ to allow the side entry but as you can see the current one has loads of room but the new one only has enough room for a pan connector plus a bit of wriggle room. Is there a flexible elbow connector that’s best to use so I can bend it closer the wall and then 90 into the pan?
Hope that makes sense!
EDIT: Just look and those photos of my current connection are deceiving, the current pipe is further away from the wall than it looks, I need to go back towards the wall about 20mm
