Planning Application - How to depict sloping site

Joined
24 Aug 2009
Messages
108
Reaction score
1
Country
United Kingdom
Hi all

Just a quickie...

I'm about to submit a planning application for my house. It sits side on to the street which is sloping. How should I show this in the drawing? Do I show the street angle (in red) - and the building behind as a dotted line like this:


Or do I just show it all at one level?
 
@FMT; no, it's not me.

(@OP. Just ignore Freddy and he might go away).

In a planning application, it's best to show sloping ground. Even if you don't. the planning officer will notice it on his customary site inspection, and will probably ask you to amend the plans accordingly.
 
Hi Tony

Thanks for that.

Any pointers as to how it should be depicted? It isn't shown on the original plans for the house (1980) but there is a definite if very shallow slope.

Thanks again!
 
If it's just the street that's sloping, and not the ground immediately against the house, then you show the ground as it is at the house, not the street.
In other words, draw the dottd line as a continuous line - forget the red one.
 
It would depend on where the cut line for your elevation view is.

If you are depicting a view say from the path immediately adjacent to the elevation, and the ground is flat at this place then show it as flat.

If you are depicting a view from a few meters away, where an observer would have his view obscured by the ground, then you would show the ground as a light grey or ghosted hatch, but still show the part of elevation obscured behind the hatch

But in context, the sloping ground would normally need to be material to the proposed work, or else you would not bother with showing it
 
If you are depicting a view say from the path immediately adjacent to the elevation, and the ground is flat at this place then show it as flat.

That's how it should be on an elevation drawing. You can't allow for different viewpoints, because where would you draw the line? (no pun intended)
3m back? 5m back? 1/4 mile back? Keep it simple!
 
Hi - thanks for the replies :D

The view is intended from the road - the door to the right is on the pavement. It is the pavement / street that slopes - the ground to the left of the house has an almost imperceivable slope.

The door will be removed and the opening built up to form a window. Also to the left of that gable elevation is a wall that I haven't shown yet which is on the pavement boundary. It will obscure the proposed changes in the elevation to the property further back - so that will be shown dotted. This wall will be rebuilt at a lower level with piers / caps to form the entrance.

Does any of this affect what I should / shouldn't show?

Thanks again
 
Hi again

I'm still unsure as to how to display this :roll:

To clarify - the view is intended from the road. The front door is on the pavement to the right - and the pavement / street has a gradual slope. The ground on which the house stands has an almost imperceivable slope. There is a wall on the pavement boundary which would obscure the elevation - so it is shown dotted. The wall is to be lowered & piers / caps added for a driveway entrance (these were demolished a while back). The front door will be part built up to form a window opening.

Should I show the ground / pavement / street hatched as below?

 
IMO, the ground is too distracting as it is not a significant slope and is not very relevant to this planning application

I'd leave it off and draw the ground horizontal
 
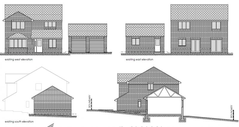
The image shows what you should be doing, indicate the ground level immediately in front of the property even if the road or pavement level in front is wildly different. The front of the house is the west ele, the height of the pavement is about 600mm higher and is demonstrated on the left hand side of the south eles. If it is important to demonstrate that the house is lower than the road in a particular application then this can be an appropriate way to do it.

 

If you need to find a tradesperson to get your job done, please try our local search below, or if you are doing it yourself you can find suppliers local to you.

Select the supplier or trade you require, enter your location to begin your search.


Are you a trade or supplier? You can create your listing free at DIYnot Local

 
Back
Top