- Joined
- 26 Jan 2021
- Messages
- 60
- Reaction score
- 2
- Country

Hi all. Grateful for any advice on the below.
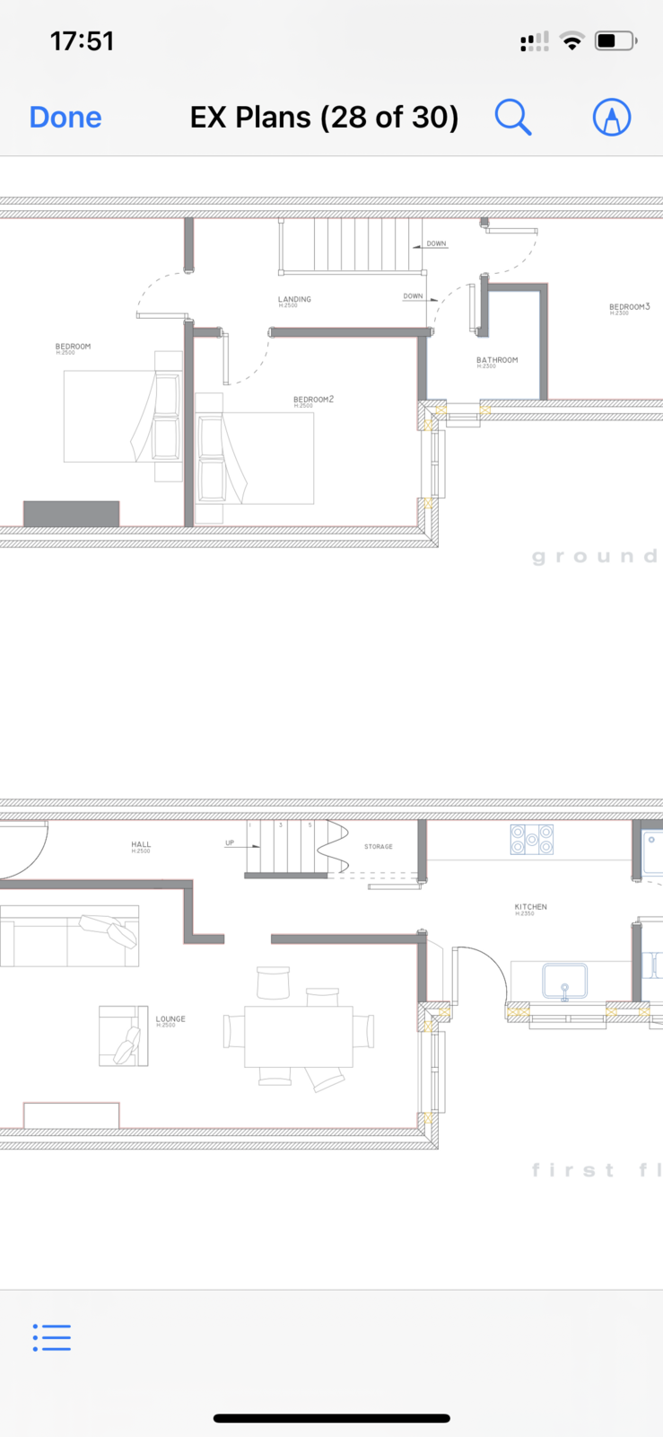
We would like to remove the wall and door frame that blocked of the stairs and hallway in our mid terrace house. We have removed plasterboard, leaving a stud wall in place for now. Before progressing further, I just want to confirm:
Is the stud wall and door frame likely to be load bearing in any way? Or are there any potential knock on affects by removing this wall?
Are there any building regulation considerations that would come to bear on removing this wall and just having a banister instead?
have attached the floor plan as well in case that helps for context.
Thanks in advance for any advice.
We would like to remove the wall and door frame that blocked of the stairs and hallway in our mid terrace house. We have removed plasterboard, leaving a stud wall in place for now. Before progressing further, I just want to confirm:
Is the stud wall and door frame likely to be load bearing in any way? Or are there any potential knock on affects by removing this wall?
Are there any building regulation considerations that would come to bear on removing this wall and just having a banister instead?
have attached the floor plan as well in case that helps for context.
Thanks in advance for any advice.