- Joined
- 16 Mar 2022
- Messages
- 26
- Reaction score
- 0
- Country

Hi All,
I got a question, can someone help?
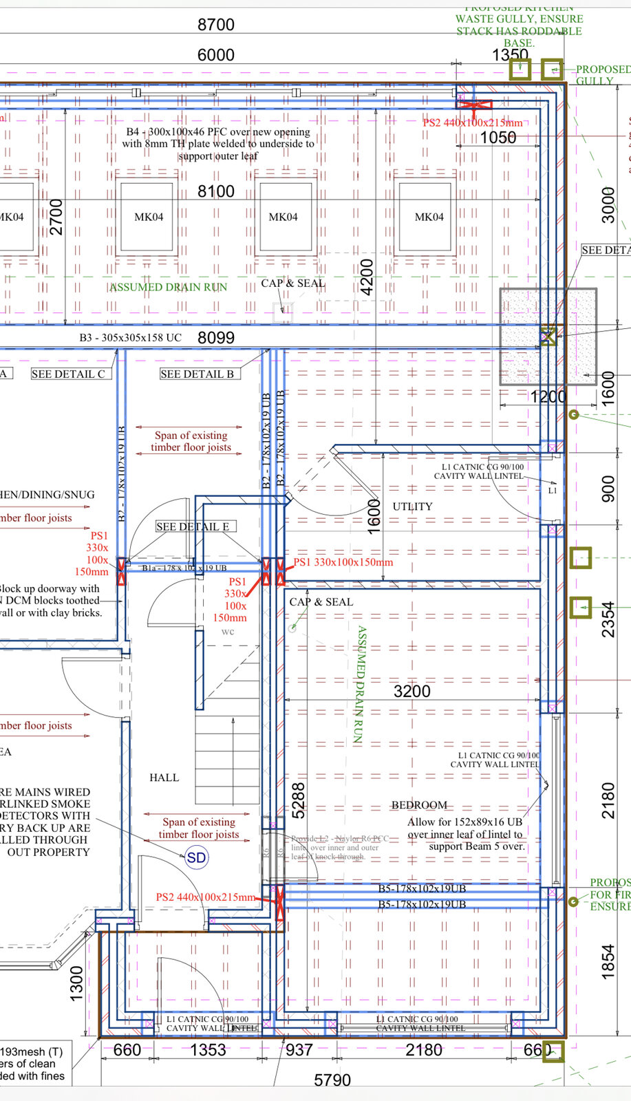
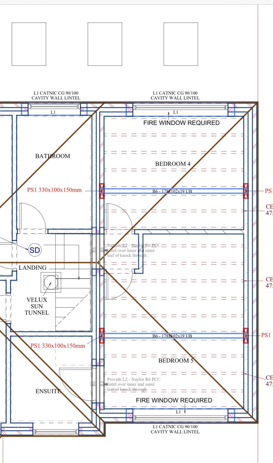
My house is semi and extending to 2 storey.
From the stairs I’ll go up and from landing if I turn left and one step climb I’ll go to existing rooms. If turn right I’ll go to new rooms. I would like to know what is the building reg minimum requirement of the space where I’m turning right/left?
I got a question, can someone help?
My house is semi and extending to 2 storey.
From the stairs I’ll go up and from landing if I turn left and one step climb I’ll go to existing rooms. If turn right I’ll go to new rooms. I would like to know what is the building reg minimum requirement of the space where I’m turning right/left?