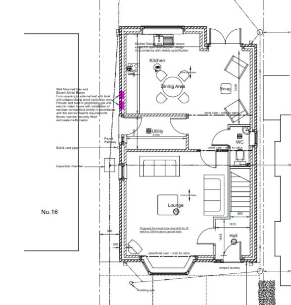
Combi boilers have limited flow rates, so fine for single bathroom homes or one or two people occupancy most likely.
So depends on your requirements, which you haven’t said.
Unvented cylinders can give as good a flow rates as the mains and pipework allows, - so substantial, especially for several outlets, mains supply permitting obviously. Filling a bath from an unvented cylinder mains system is where you notice the speed of fill up.
Combi though a simple solution if it suits you.
Note that microbore pipes for to radiators can only have very short runs. Plastic pipes have heavier walls and therefore much smaller internal bores, so will be even worse at flow performance to rads.
So depends on your requirements, which you haven’t said.
Unvented cylinders can give as good a flow rates as the mains and pipework allows, - so substantial, especially for several outlets, mains supply permitting obviously. Filling a bath from an unvented cylinder mains system is where you notice the speed of fill up.
Combi though a simple solution if it suits you.
Note that microbore pipes for to radiators can only have very short runs. Plastic pipes have heavier walls and therefore much smaller internal bores, so will be even worse at flow performance to rads.
