Chimney breast/loft conversion
We have a 1930s semi in London, UK and are looking to do a loft conversion.
If possible we want to remove the chimney breast in the loft space to provide greater width to the new master bedroom.
We have received these plans from the structural engineer with a set up we’ve never seen before - see attachment.
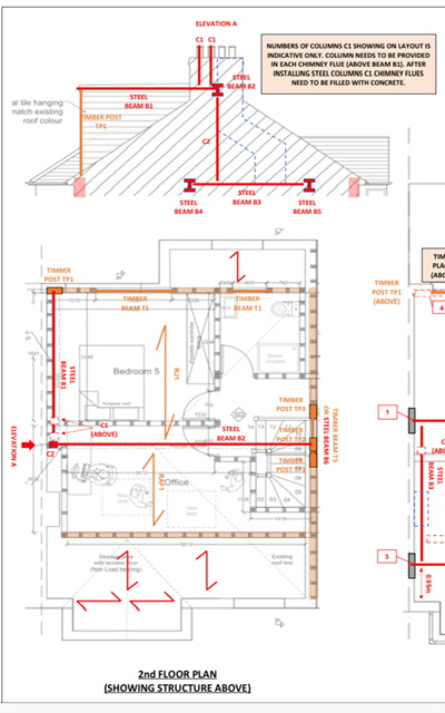
In summary, the chimney breast has been removed, to new ceiling level with the stack supported with a steel beam and then the redundant chimney flue/pots filled with a steel column and concrete.
As said, we have not seen this before and would like to check whether it is acceptable to building control.
Is this the best way or are there alternatives?
Thanks in advance for any replies and comments
We have a 1930s semi in London, UK and are looking to do a loft conversion.
If possible we want to remove the chimney breast in the loft space to provide greater width to the new master bedroom.
We have received these plans from the structural engineer with a set up we’ve never seen before - see attachment.
In summary, the chimney breast has been removed, to new ceiling level with the stack supported with a steel beam and then the redundant chimney flue/pots filled with a steel column and concrete.
As said, we have not seen this before and would like to check whether it is acceptable to building control.
Is this the best way or are there alternatives?
Thanks in advance for any replies and comments
