Hi
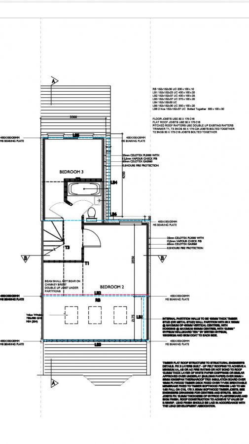
I am just asking for advise. I have recently had my loft converted under PD rights. Following discussions with the neighbours it was agreed that I should raise the party walls in brick to match existing house as they intend to convert at a later date. The 20 cm setback was not maintained as the independant building inspector advised it is not a set requirement. The loft has now been completed with a completion certificate issued only to find myself that the Council are not happy with my loft and they consider taking enforcement. The reason given by them was the fact that I have raised the party walls and not maintained the 20 cm- making the extension look like an additional floor, even if it is under 40 sq m and respects all the requirements for PD.
Having already contacted an arhitect and a party wall surveyer prior to the loft conversion and having building regulation in place, where do I stand? Are they entitled to give enforcement? Any advice is much apreciated. Picture is atached.
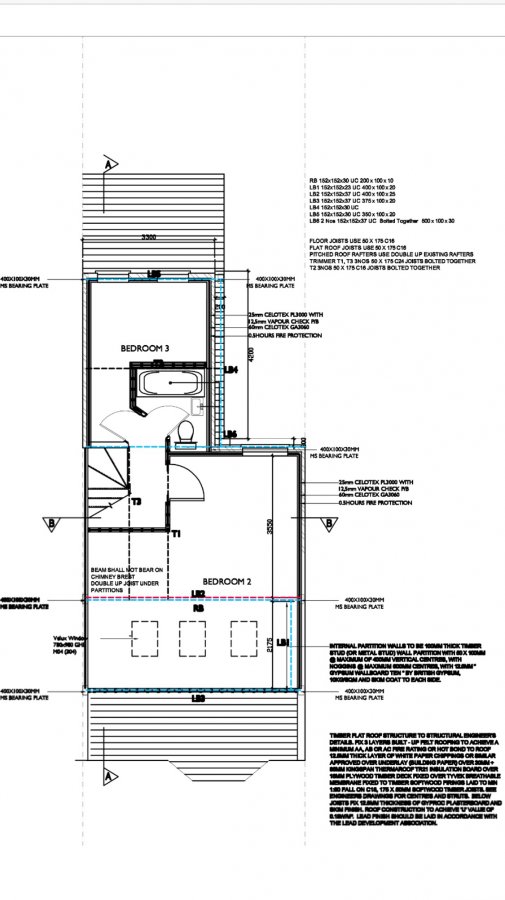
I am just asking for advise. I have recently had my loft converted under PD rights. Following discussions with the neighbours it was agreed that I should raise the party walls in brick to match existing house as they intend to convert at a later date. The 20 cm setback was not maintained as the independant building inspector advised it is not a set requirement. The loft has now been completed with a completion certificate issued only to find myself that the Council are not happy with my loft and they consider taking enforcement. The reason given by them was the fact that I have raised the party walls and not maintained the 20 cm- making the extension look like an additional floor, even if it is under 40 sq m and respects all the requirements for PD.
Having already contacted an arhitect and a party wall surveyer prior to the loft conversion and having building regulation in place, where do I stand? Are they entitled to give enforcement? Any advice is much apreciated. Picture is atached.
