Hi all,
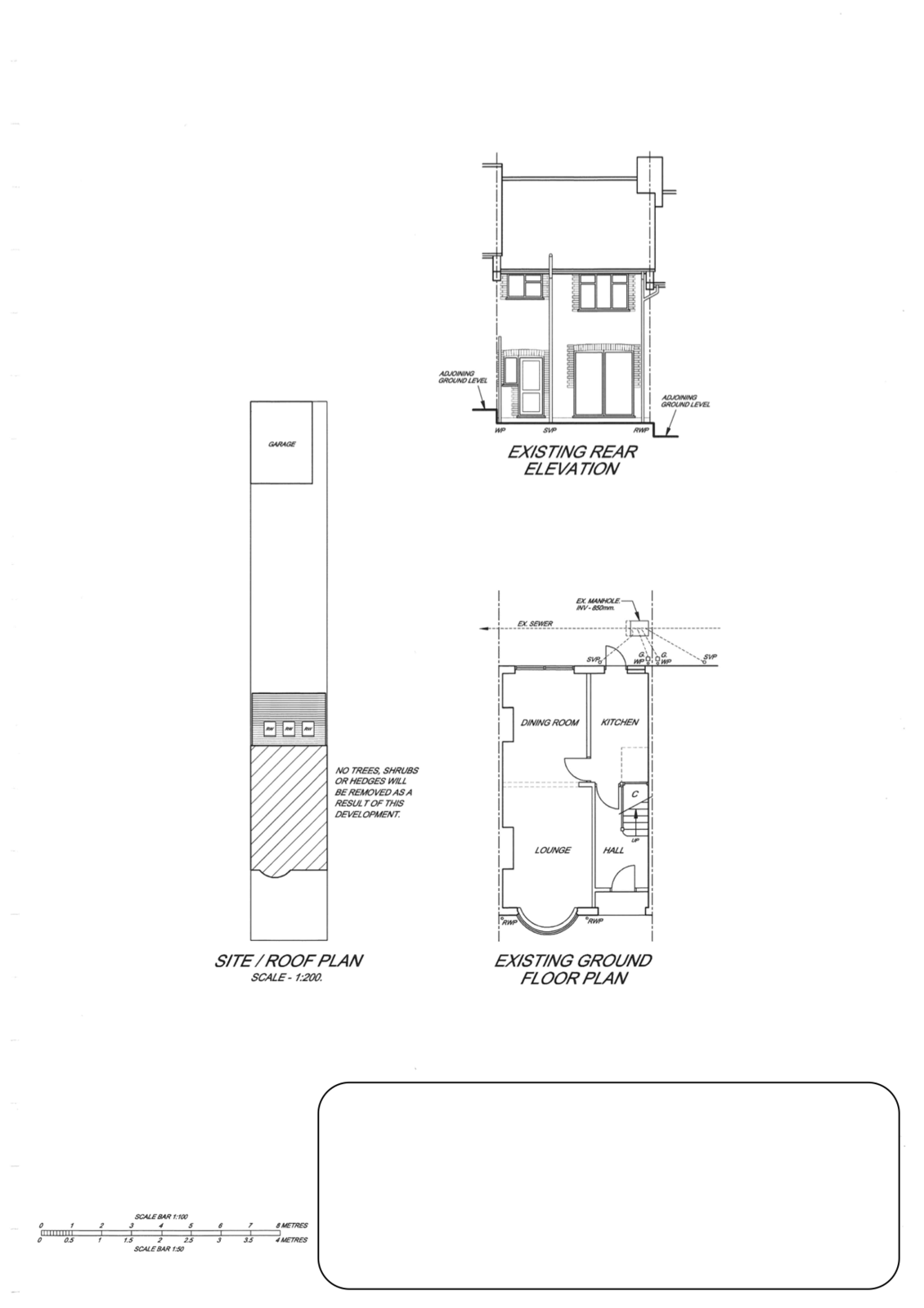
We are newbies, planning to build our first rear extension. Currently we look to switch from expensive-and-not-very-responsive architects with whom we have started to work on options for our rear extension, to some more affordable architectural design bureaus. One option is to take the guys who have produced the plans in the attachment (actually got it from our neighbours party wall notice & award)
The question - Can the sample drawings in the attachments be submitted to Building Control and to the Builders for the accurate quotes & build, or something more detailed is needed ?
[Building engineer calculations for all beams and lintols are also available, not included here]
Also, regarding the attached sample plans - how the questions like "Contractor to expose ex beam at start of works. Structural Engineer to confirm suitability to support new beam & upgrade beam if necessary" are resolved? Do builders quote for main batch of work + additional work if required?
Thanks,
D
We are newbies, planning to build our first rear extension. Currently we look to switch from expensive-and-not-very-responsive architects with whom we have started to work on options for our rear extension, to some more affordable architectural design bureaus. One option is to take the guys who have produced the plans in the attachment (actually got it from our neighbours party wall notice & award)
The question - Can the sample drawings in the attachments be submitted to Building Control and to the Builders for the accurate quotes & build, or something more detailed is needed ?
[Building engineer calculations for all beams and lintols are also available, not included here]
Also, regarding the attached sample plans - how the questions like "Contractor to expose ex beam at start of works. Structural Engineer to confirm suitability to support new beam & upgrade beam if necessary" are resolved? Do builders quote for main batch of work + additional work if required?
Thanks,
D
