Of course it shouldn't, and right is definitely on the OPs side. However, just trying to inject a little pragmatism into the debate because while you may have 100% right, it doesn't help if you then get bogged down in protracted litigation that drags on. Getting the job done must have a value in itself. As I say, not ideal, but you sometimes have to pick your fights.
I agree, a legal battle is not a solution on a job half done......
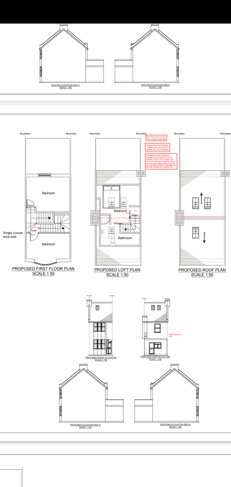
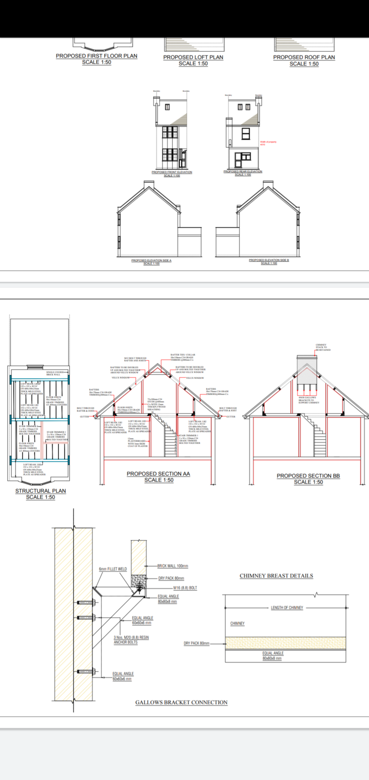
I had a customer whose son had a loft conversion and refurb done, by a 'specialist'. Unfortunately it turned into a disagreement because the job wasnt building regs compliant and the client refused to pay further installments. The result was the house was left with half the rooms unusable.
The problem wasnt the money, luckily the balance unpaid virtually covered sorting it out, by far the biggest issue was the 6 months of them living in a building site, no bathroom etc etc.

