- Joined
- 28 Dec 2020
- Messages
- 26
- Reaction score
- 0
- Country

I'm hoping someone can shed some clear light on this topic.
Theres lots of discussion online but seems to be very much a grey area with no clear answer.
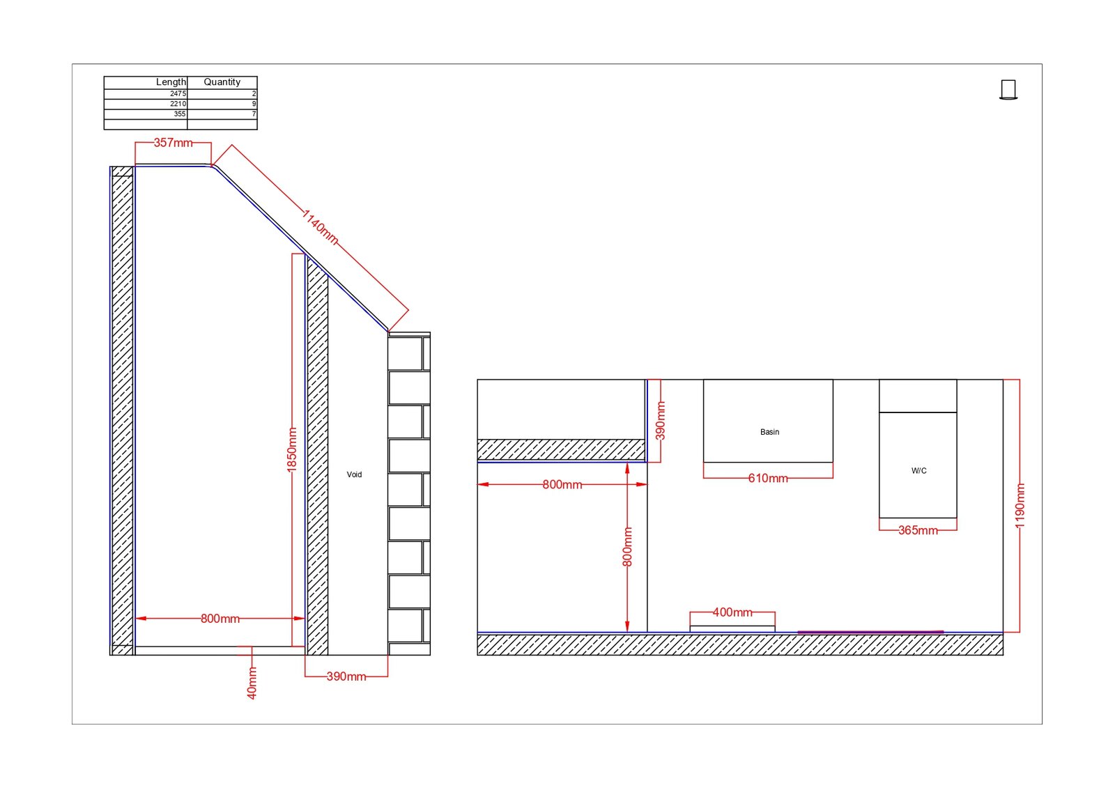
We've had approval to build a new ensuite in the master bedroom. Part of the ceiling is sloped/vaulted with no insulation.
As part of the build I wanted I thought now would be the best time to insulate that bit of ceiling.
My plan was to simply overboard with insulated plasterboard, rather than ripping down the old stuff and insulating between the rafters as well.
Now the issues come when looking to add downlights or even an extraction fan I suppose as this would require cutting holes in the insulation, taking away the thermal properties of the insulation and possibly causing condensation issues.
In my opinion the loss of thermal efficiency made my a few small holes will not outweigh the improvement of the adding the insulation in the first place. There will still be a large air gap behind the lights between the rafters, I hope this would avoid any condensation issues. But I really don't know at this stage.
What are my options for insulating this space and installing downlights?
Thanks
Theres lots of discussion online but seems to be very much a grey area with no clear answer.
We've had approval to build a new ensuite in the master bedroom. Part of the ceiling is sloped/vaulted with no insulation.
As part of the build I wanted I thought now would be the best time to insulate that bit of ceiling.
My plan was to simply overboard with insulated plasterboard, rather than ripping down the old stuff and insulating between the rafters as well.
Now the issues come when looking to add downlights or even an extraction fan I suppose as this would require cutting holes in the insulation, taking away the thermal properties of the insulation and possibly causing condensation issues.
In my opinion the loss of thermal efficiency made my a few small holes will not outweigh the improvement of the adding the insulation in the first place. There will still be a large air gap behind the lights between the rafters, I hope this would avoid any condensation issues. But I really don't know at this stage.
What are my options for insulating this space and installing downlights?
Thanks