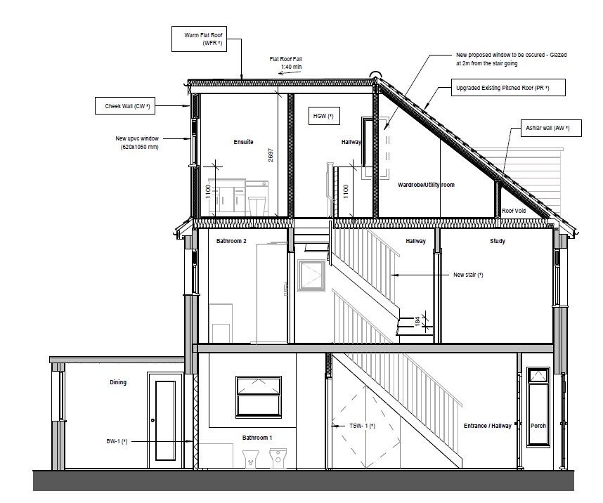
I`m drawings up some drawings for building reg but struggling to get info on what building regulation accept or advise.
I may miss some point but on planning portal they do not specify a single element.
is there any guide or something to use a reference point?
Thanks
I may miss some point but on planning portal they do not specify a single element.
is there any guide or something to use a reference point?
Thanks
