- Joined
- 13 May 2020
- Messages
- 5
- Reaction score
- 0
- Country

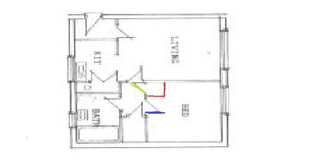
Can I remove this cupboard safely and move the door over?
I want to remove this cupboard and then move the right door over in the hallway into the left hand side where the cupboard is now. Doing this will add so much room in my bedroom.
I wanted to make sure this cupboard isn't holding the roof up or anything before I go about destroying it and moving anything around.
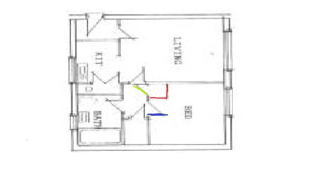
I want to remove this cupboard and then move the right door over in the hallway into the left hand side where the cupboard is now. Doing this will add so much room in my bedroom.
I wanted to make sure this cupboard isn't holding the roof up or anything before I go about destroying it and moving anything around.
Attachments
-
1 (1).jpg213.3 KB · Views: 376 -
1 (2).jpg175.7 KB · Views: 349 -
1 (3).jpg161.3 KB · Views: 362 -
20200513_183153.jpg177 KB · Views: 377 -
both doors bottom.jpg111.8 KB · Views: 337 -
both doors top.jpg122.8 KB · Views: 360 -
bottom.jpg146.7 KB · Views: 360 -
full.jpg105.3 KB · Views: 352 -
Inside cupboard roof.jpg101.7 KB · Views: 339 -
top.jpg122.1 KB · Views: 357