
Hi
I’ve just had a new combi boiler fitted and every time we turn the boiler on the cooker gas supply shuts off. Does anyone know why this would be ? Please help
If this is not a wind-up, get the installer back immediately to rectify.
OWind up?
Yep. Phone the fitter. Obviously.
If that does not work, copy up the benchmark, to convince us (or maybe just me), that you are not on the pis$ take.
PS, every RGI knows the answer.
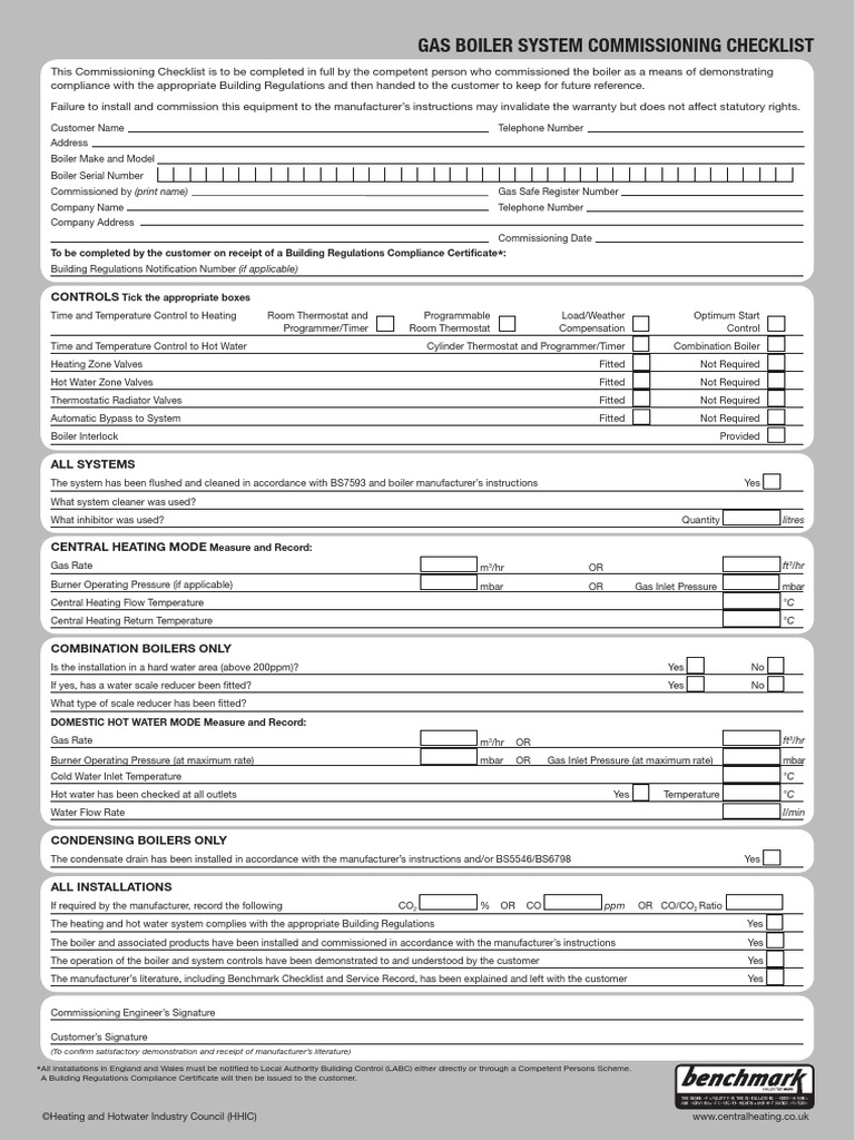
People post wind-ups about all sorts of things, you'd be surprised. Can you post a photo of the Benchmark sheet in your instruction manual? It'll give us an idea of what the installer has done, and looks like the photo bellowO
Why would anyone wind anyone up about this? I posted this near enough mid night to ask how serious it is?! Is this dangerous as I am pregnant
National Grid won't help you, they'll just cap off your gas supply at the meterI am not a RGI!? I am just asking as a housewife! Why can’t people be serious, should I be phoning national Grid?!??
Why would anyone wind anyone up about this?
I can’t afford anyone else
Is this dangerous as I am pregnant
People post wind-ups about all sorts of things, you'd be surprised. Can you post a photo of the Benchmark sheet in your instruction manual? It'll give us an idea of what the installer has done, and looks like the photo bellow
View attachment 148308
And yes it does sound like it's dangerous
You'd be surprised.
Besides this kind of cock up is inexcusable for an installer who should have at least checked all the operations - bear in mind we only have your word for the details at this stage.
On the assumption that this isn't a wind up. Have you paid him? If not. Don't until you have contacted gas safe and requested an inspection.
In the meantime, use some of the payment to get another installer out to check the installation.
Is it dangerous? Potentially. It depends on the cooker.
I'm sorry, but you have to prioritise.
Post up a copy of the benchmark book (at the back of the boiler manual) just cut off your personal details.
They are the registration body that all Gas Installers must join to prove they are competent. They replaced CORGI about 9 years ago. Your installer should be registered with Gas Safe and you should have checked their registration card before they started work to see if it was in date and they were registered to install boilersWho are gas safe??
If you need to find a tradesperson to get your job done, please try our local search below, or if you are doing it yourself you can find suppliers local to you.
Select the supplier or trade you require, enter your location to begin your search.
Are you a trade or supplier? You can create your listing free at DIYnot Local